El techo de esta casa es un jardín, y esto es solo el comienzo

diseño 77 estudio“House on the Slope” es una casa unifamiliar en silencio incrustada en el terraplén a lo largo del río Vista en Polonia. Con su forma hundida, la fachada de acero Corten y el techo verde, el hogar conserva el terreno natural y prioriza la privacidad, la tranquilidad y las vistas mientras mantiene un impacto visual mínimo en los alrededores.

Encaramado en las repisas en Vistula, un río más largo de Polonia, la casa está construida sobre el punto de vista favorito del propietario, un lugar conocido por su vegetación en el río en capas, el horizonte de la ciudad distante y los ríos cambiantes debajo. El drama natural y la apertura del sitio son clave para dar forma al diseño final.

En lugar de seguir el límite de la ubicación, la casa está en línea con la mejor vista al otro lado del río. Esta dirección informa toda la estructura, desde casi todas las habitaciones que permiten vistas amplias y sin barreras. La mayoría de las casas están integradas en pendientes, lo que les permite desaparecer visualmente en el paisaje mientras mantienen la eficiencia térmica y la privacidad.


La entrada a la casa se corta en la pendiente como un sutil barranco de acero. Este camino de entrada hundido conduce a una pequeña terraza empotrada y una puerta principal diseñada para ocultar la vista para acceder. Corten Steel se usa a lo largo de la entrada y la fachada, proporcionando a la entrada un carácter sólido y desgastado que combina con el terreno.


Para evitar destruir la hierba natural de arriba, toda la casa está cubierta de techos verdes cultivados por especies nativas del banco ribereño. Desde arriba, la casa es casi invisible. Esto suaviza el impacto visual de la casa, protege la vista local y fortalece la idea de que la casa es parte de la pendiente en lugar de separarse de ella.


Grandes marcos de apertura ríos, pendientes y vegetación específicos. Las puertas correderas de 12 metros de ancho en la sala de estar permiten que toda la pared del sudeste abriera al aire libre. El patio y el patio más pequeños cortan en la pendiente, trayendo vislumbres de luz del día y vegetación que pueden iluminar naturalmente y ser aireado sin sacrificar la discreta silueta de la casa.





La terraza se extiende directamente desde el espacio principal, frente al río. Su ubicación se puede utilizar para la luz solar y las vistas sin elevación, continuando con la inclinación natural del sitio. Actúa como un umbral entre el interior y el paisaje, no la plataforma sobre él, sino la superficie dentro de él.




Un conjunto de escaleras discretas conduce al techo, invitando a los residentes a experimentar completamente el techo verde como una extensión del paisaje. Desde este bajo elevado, las vistas del río Vístula y la vegetación circundante se desarrollan completamente. La transición se siente natural, no como trepar por un techo, sino caminar por la pendiente.

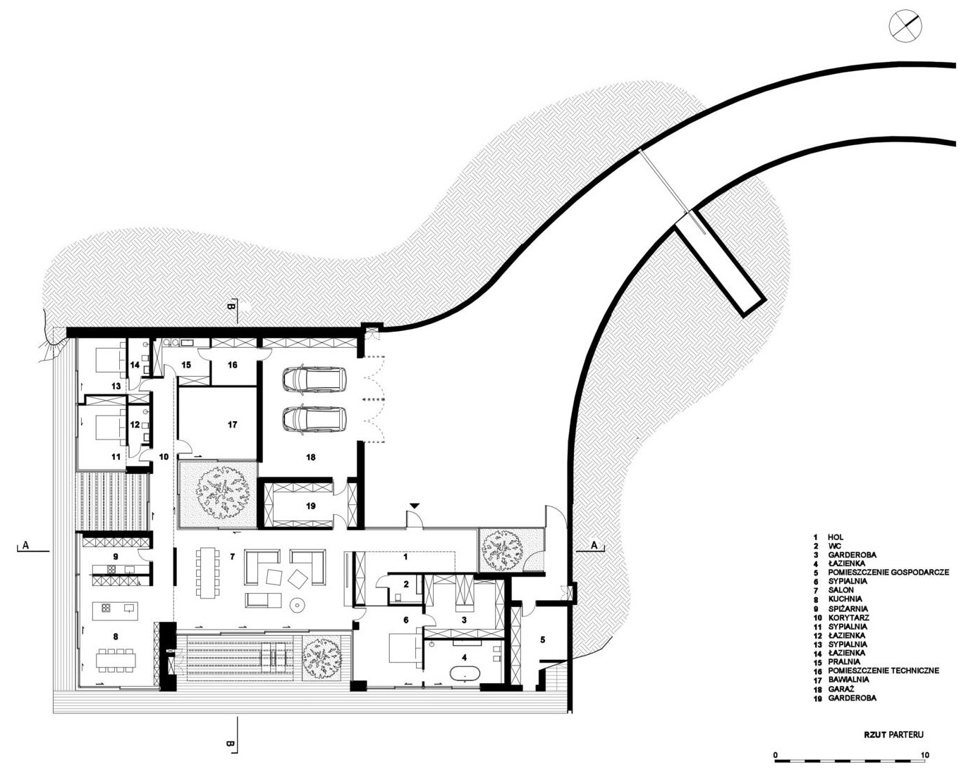
Estos son los dibujos arquitectónicos de la casa.



Las casas en la pendiente muestran cómo el edificio desaparece a la vista. 77 Studio crea una casa que no domina la vista al incrustarse en el terreno, mantenerse en línea con el contorno natural y retener la locura de la tierra.