High Desert House/Ryan Leedner Architecture


Descripción enviada por el equipo del proyecto. Ubicado en una pintoresca trama no desarrollada Árbol de joshuaeste High Desert House celebra la belleza del desierto con una simple simplicidadmientras tanto, puede servir como un espacio creativo para hogares y propietarios

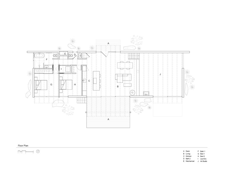
El proceso de diseño comienza con el deseo de respetar el paisaje, creando un edificio de huella compacto al tiempo que permite el disfrute de la amplitud del desierto. Desde una perspectiva de diseño, estamos buscando una casa que pueda ser como una casa cálida y acogedora que se pueda definir. Inspirados por artistas y escultores del movimiento terrestre de los años sesenta y setenta, encontramos inspiración en cómo el contexto de los paisajes del desierto le da al trabajo su significado único.

Para llegar a la propiedad, viaje unos pocos kilómetros a lo largo de una carretera de tierra y arena con otras casas o remolques en el camino. En la última ronda, la casa comienza a aparecer detrás de los afloramientos de roca, como una delgada línea blanca en el paisaje.


Trabajar en entornos remotos requiere un diseño simple y económico. entonces, Sistema estructural que utiliza varillas expuestas y vigas simplessu espacio regular define la distribución interna de habitaciones y otros espacios.

Demasiado Como hogar de la investigación del arteEl proceso de diseño inicial se inspiró en los espacios de artistas famosos como Georgia O’Keeffe, Willem y Elaine de Kooning, y las casas diseñadas para sí mismo por Luis Barragán. Entre todos, hay una hermosa mezcla entre la vida y el trabajo creativo, que es la inspiración para el proyecto.

este La casa es un edificio con un exterior de yesoLa razón por la que elegí es porque Puedes resistir las fluctuaciones climáticas extremas en el desierto. Uno de los problemas más interesantes que se enfrentan durante el proceso de diseño es elegir un color para el exterior. Inicialmente, exploramos la idea de usar estuco de tono neutral que se mezclará con paisajes desérticos. Pero cuando observamos la opción más exhaustiva, nos dimos cuenta de que en realidad resta el valor del paisaje y la arquitectura, y que tener un contraste de tono más fuerte ayuda a resaltar la belleza de los alrededores.

El diseño del hogar calma la mente y adopta un enfoque más interno al celebrar la belleza del desierto.



(Toucastototranslate) Arquitectura