Edificio 450 Gore Street / Edición Oficina + Neometer


Descripción enviada por el equipo del proyecto. Estos nuevos apartamentos de edición limitada 18, diseñados por la galardonada oficina de arquitectos galardonados, y uno de los equipos de desarrollo para el diseño más antiguo de Australia, se encuentra en Wood Street FitzroyMelbourne. Ubicado en 450 Gore Street, el proyecto se encuentra en tres de las arterias más activas de Fitzroy: las calles Gertrude, Smith y Brunswick.

La arquitectura es atemporal y única, mejorando la arquitectura con detalles escultóricos sutiles. Detallado y medido, forma expresada con claridad y precisión. El diseño solidifica los elementos del edificio, sus piezas y funciones, lo que refleja su tiempo y lugar con un sentido de permanencia.

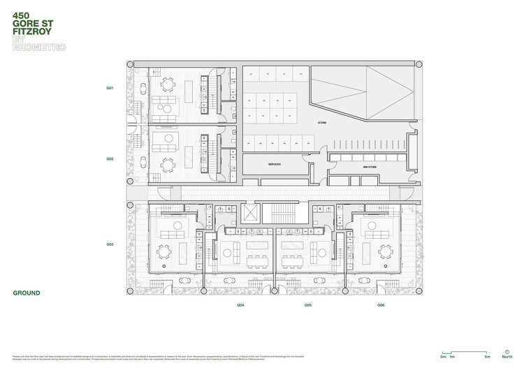
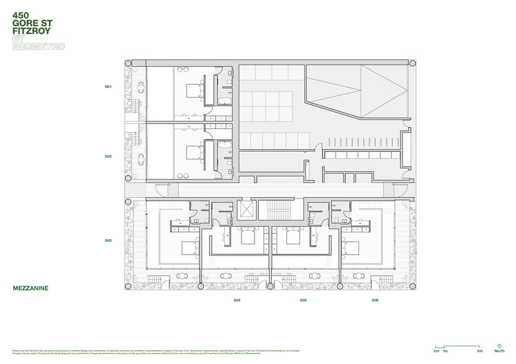
Neometro y la oficina de la edición comparten la promesa de un diseño residencial meticuloso que funciona perfectamente. Una mezcla de residencias de una, dos y tres habitaciones refleja cómo se desarrolla el diseño de apartamentos en un mundo donde la densidad de crecimiento es crucial.

Se han elegido materiales como el concreto, aunque hermoso, por su útil utilidad y calidad. El concreto lleva tiempo a la textura, lo cual es importante en los suburbios Fitzroyel pasado y el presente siempre están hablando. El edificio tiene un lenguaje estructural fuerte, pero el espacio en el interior es suave y sensible a nuestra forma de vida.


El proyecto está diseñado para celebrar la condición humana, alentar a los residentes y enriquecer la vida diaria. El arquitecto imaginó los rituales diarios de la vida en estos apartamentos, ya sea comiendo, durmiendo o bañarse. El diseño está lleno de un alto grado de atmósfera y cierta calidad experimental para crear la alegría del espacio. Estos apartamentos están diseñados para promover proporciones cuidadosas de cocina y entretenimiento, cocina, comedor y sala de estar para preparar algo y recibir invitados con comodidad absoluta.


El volumen es una consideración de diseño clave que existe en todo el proyecto, incluido el techo de cinco metros de altura en el apartamento de tipo loft, agregando amplitud y comodidad al espacio habitable. Este énfasis en el volumen y la calidad del espacio es una parte integral de todos los proyectos Neometro y se ha convertido en un sello único de diseño por parte del grupo.


Fitzroy es conocido por su cultura, hospitalidad y negocios, pero sus calles boscosas son una de las cualidades más agradables y reconocidas del área. Todas las casas ofrecen vistas claras de las calles que bordean árboles, suburbios adyacentes o del centro y ofrecen muchos apartamentos que ofrecen aspectos duales. La superposición de las victorias de los municipios locales proporciona una protección duradera para este dispositivo vital.

450 Gore Street apunta a calificaciones energéticas de Nathers de 7.5 estrellas, que incluyen un protocolo de energía neutral de carbono a 10 años, servicios totalmente eléctricos y aislamiento de alta temperatura que ofrece comodidad durante todo el año sin depender de la gasolina.

(Tagstotranslate) Edificio