Río / Labarq House | Investigar en español


Descripción enviada por el equipo del proyecto. Casa Río es un proyecto sensible al terreno y la geometría irregular de la tierra. Su forma “V” no solo resuelve el estado trapezoidal de la propiedad, sino que también crea un jardín central que articula la casa y enmarca la vista y la trata como el entorno natural circundante.


El propósito es El edificio desaparece entre los árboles, con paredes ciegas en el frente y una abertura completa hacia la vista posterior: el brillo de los alrededores, la transparencia y la conciencia de la casa.

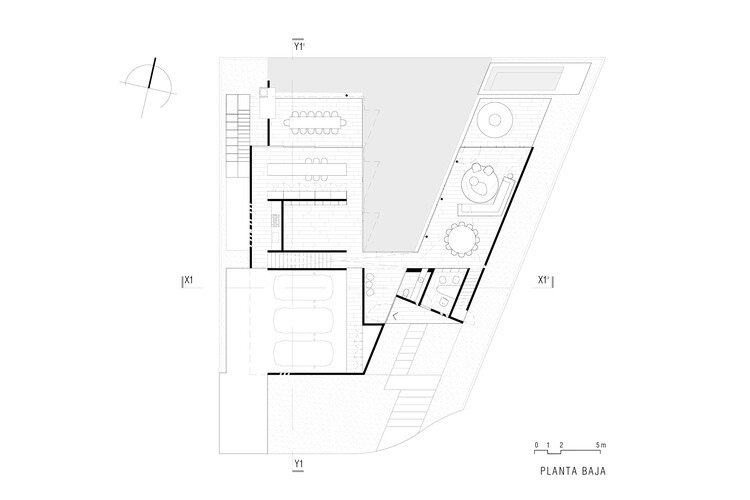
El diseño se divide en dos volúmenes principales. El primero tiende a adaptarse a la pendiente, con espacios sociales: una habitación doble y un comedor, una oficina con acceso separado y un entrepiso ampliado es el espacio interior. Afuera, la piscina y la estufa crean una continuidad entre el edificio y el paisaje.


El Volumen 2 enfoca los servicios en la planta baja (cocina, sala de televisión, patio y núcleo de bucle) a excepción del sótano con una cervecería y sala de servicio. Nivel superior para espacios privados: un dormitorio principal con vestidores y tres habitaciones secundarias estratégicamente abiertas a la fachada del noroeste para obtener vistas controladas sin comprometer la privacidad.


El diseño estructural está integrado como parte del lenguaje arquitectónico. Las columnas de acero liso, los parches y los tensores de metal permiten una limpieza extensa y lectura ligera. En el dormitorio, los tensores ajustan el sol y guían la vista y fortalecen la conexión con el exterior. Las paredes laterales del primer volumen flotan en el suelo, mejorando la sensación de ligereza y transparencia.


La fachada crea una conversación contrastante: tanto sobrio como sólido en la parte delantera y de los lados, mientras que la parte trasera se abre completamente a través del piso al techo, eliminando el límite entre el interior y el exterior.

La materialidad mejora la integración con el contexto mediante el uso de recursos locales: mármol de St. Thomas, rodajas de nogal y tipos de menta de tipo madera, diálogos con jardines controlados secados a grava y vegetación nativa con bajo consumo de agua. El proyecto reemplazó el césped tradicional con ecológico sostenible, reduciendo los impactos ambientales y el fortalecimiento de los lazos con el territorio.

(Tagstotranslate) Edificio