Café SO_LO _ Copacabana / Studiochão

- área:
90 Metro cuadrado

Descripción enviada por el equipo del proyecto. El tercer proyecto de café de la marca está solo en el acrónimo de Copacabana RJ (sostenibilidad, orgánico y local), comenzando con el espacio de dos tiendas de calle adyacentes en el vecindario de Copacabana Beach. La primera fase del proyecto es de la primera fase. Revelación y privación de toda la estructura La resistente y duradera del obvio edificio de Artdecó.


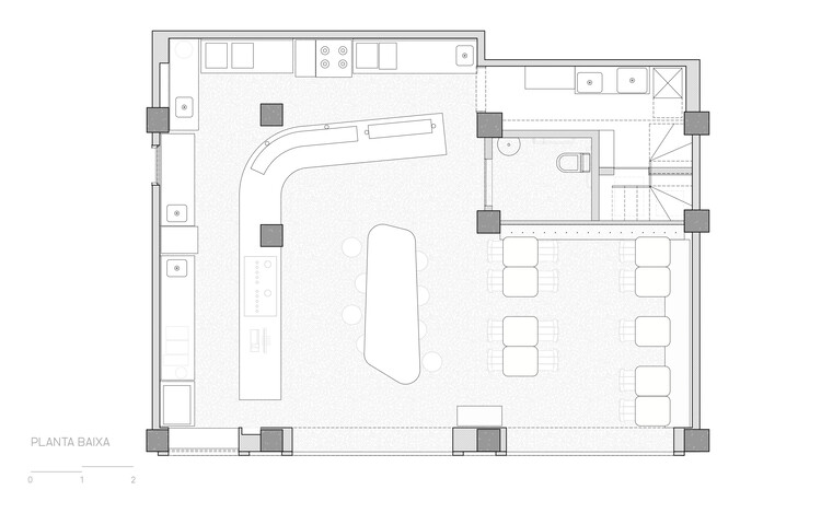
Una tienda de Generosa Street, a través de investigaciones en la década de 1970, ha sido ocupada por un famoso restaurante/heladería buffet. Comenzando con esta imagen preexistente, uno piensa en una amplia gama de ataques, que envuelven los pilares, define todo el espacio de la tienda, la cocina que es visible en la sala de estar.


Planto, Los contadores se convierten en grandes elementos de la tiendapor tecnología con acabado a mano Pirada Red Tard. Los materiales utilizados para construir contadores se convierten en un elemento poderoso de la marca de café en sí. Los aspectos más destacados incluso se destacan con una atmósfera clara y se acumulan en pequeños herreros blancos y placas de acero inoxidable, lo que da todos los aspectos más destacados del peso visual causado por el lodo.


Las mezclas de materiales contrastantes puras a mano con sobrealcanzación y materiales técnicos y los pisos de piedra portugueses rojos contribuyen a la sensación de manualidades del mostrador, lo que sugiere que hay un Continuidad de la acera de la costa de la playa. Invite a las experiencias callejeras para proporcionar café a residentes y visitantes de Copacabana.

(Tagstotranslate) Arquitectura (T) Hoteles y entretenimiento (T) restaurantes y bares (T) Café (T) Río Janeiro