Pudúhouse / Manuel Ciarlotti Bidinost


Descripción enviada por el equipo del proyecto. Esta es una casa familiar Girar en torno a la expresión en lugares públicos, especialmente espacios relacionados con el mundo de los niños. La propuesta intenta intensificar y detectar exámenes afuera, jardines de invierno, habitaciones e investigaciones, creando continuidad que puede mantener esta relación en diferentes sitios durante el año.

La casa está equipada con un área secundaria llamada House B, a pocos metros de la parte principal. Este espacio flexible es un ensayo, seminario o sala de estar de huéspedes, ampliando así la posibilidad de uso familiar y cultural. Puede ver casas extendidas como áreas de producción, ocio y encuentro sin perturbar la “casa familiar”.


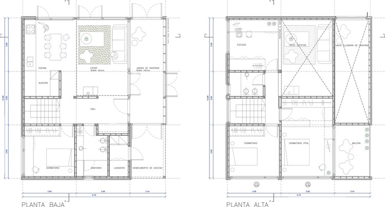
El proyecto está organizado por un eje lineal que abarca la tierra desde su paso, a través del jardín de invierno y en la habitación B a lo largo del clímax de la casa grande. A lo largo de la ruta, el jardín califica de acuerdo con su relación con la familia: como una campana para llegar, como una extensión del jardín de invierno y el espacio intermedio articulado entre las dos casas.


La materialidad se resuelve mediante la estructura del marco de madera soportada en el puesto de concreto. Todas las luces se resuelven con una pequeña parte, capaces de sostener el interior grande. Destacó la barandilla del haz del balcón de estudio, que asume la mayoría de los esfuerzos estructurales del límite superior y libera el primer piso.


proyecto Por lo tanto, propone una dialéctica entre la compresión y la expansión, entre niños y adultos, donde el espacio estrecho precede al área de gran capacidad. Este juego espacial no solo mejora la experiencia del tour, sino que también presenta dimensiones casi enormes de conversación con espacios adyacentes, La confirmación de la condición de la casa es una expresión de la vida moderna. Esta tensión entre la intimidad y la apertura forma una atmósfera familiar.

Edificio