Saltar enlaces

Restaurante uke/estudio | Investigación en español

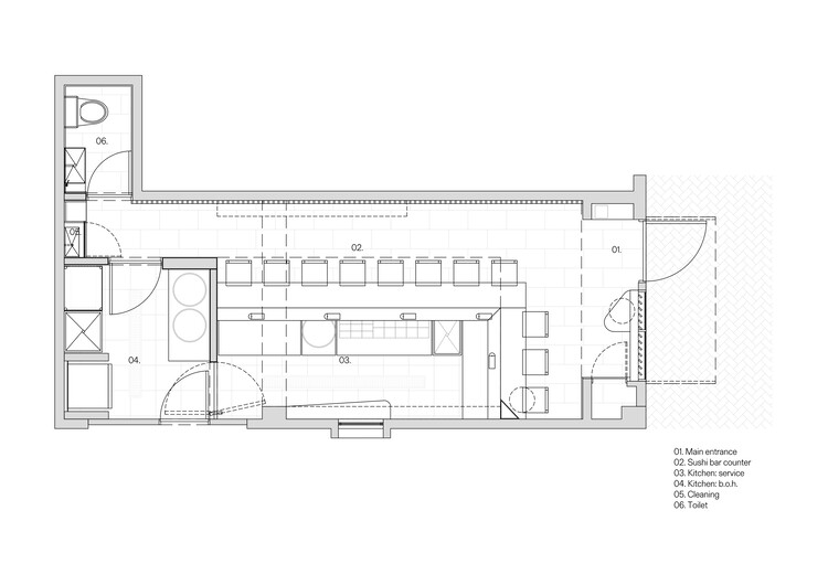
Restaurante uke/estudio-figura 2 total 24Restaurante/Estudio UKE - Fotografía interior, madera, iluminaciónRestaurante/Estudio UKE - Fotografía interior, madera, iluminaciónRestaurante/estudio uke - imagen 5 de 24Restaurante/estudio uke - más imágenes+ 19

¡Hola! ¡Pregúntame lo que quieras!
Explore
Drag