Casa Lane 10/Estudio de diseño True Thing


Descripción de la presentación del equipo del proyecto. El edificio está ubicado dentro del área de restricción de altura del aeropuerto original de Shuinan. Las tierras de cultivo de baja densidad y los huertos que alguna vez existieron forman un laberinto sinuoso. Después de la renovación quedó una dirección que no se pudo identificar: el “Callejón nº 10”, que también se convirtió en el origen del nombre del proyecto y del concepto de diseño.




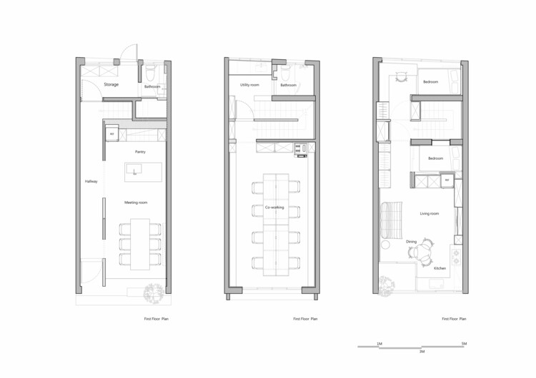
El proyecto renovó una casa adosada de tres pisos de 45 años de antigüedad. Delimitado por la escalera central en el segundo piso, las funciones se reorganizan: un lado sirve como espacio de coworking y el otro como residencia privada.

Las oficinas del primer piso fueron demolidas selectivamente, dejando al descubierto la estructura de ladrillo de la antigua casa. Las aberturas de múltiples escalas introducen luz y transparencia, transformando el diseño estrecho de la casa en un “carril interior” lleno de profundidad y ritmo.




En las unidades residenciales, las funciones de vestuario y lavandería están integradas en la entrada, lo que permite a los usuarios completar la limpieza y cambiarse de ropa después de regresar a casa, lo que refleja la conciencia de la gente sobre la higiene y el espacio personal después de la epidemia.

El tercer piso prioriza las grandes áreas compartidas manteniendo al mínimo las áreas para dormir. La puerta del dormitorio adopta un diseño de pivote oculto, que queda oculto en la pared cuando se abre, suavizando los límites del espacio y creando la coexistencia de separación y continuidad.

