Panadería Forn Lleva’t / Quim Olea · Estudio de Arquitectura


Descripción de la presentación del equipo del proyecto. Forn Carrie’t es un antiguo almacén reconvertido en panadería artesanal en la calle dels Fossos del centro histórico de Avinyonet de Puigventós, que recupera la tradición panadera del pueblo y recupera su papel social y cultural. Más que una simple renovación, el proyecto fue concebido como una interpretación sensible del lugar: una arquitectura que escucha, interpreta y apoya en lugar de imponer. La intervención trata la estructura existente no como un lienzo en blanco sino como un archivo de material vivo donde la memoria, la textura y la artesanía dan forma a la experiencia espacial y sensorial.

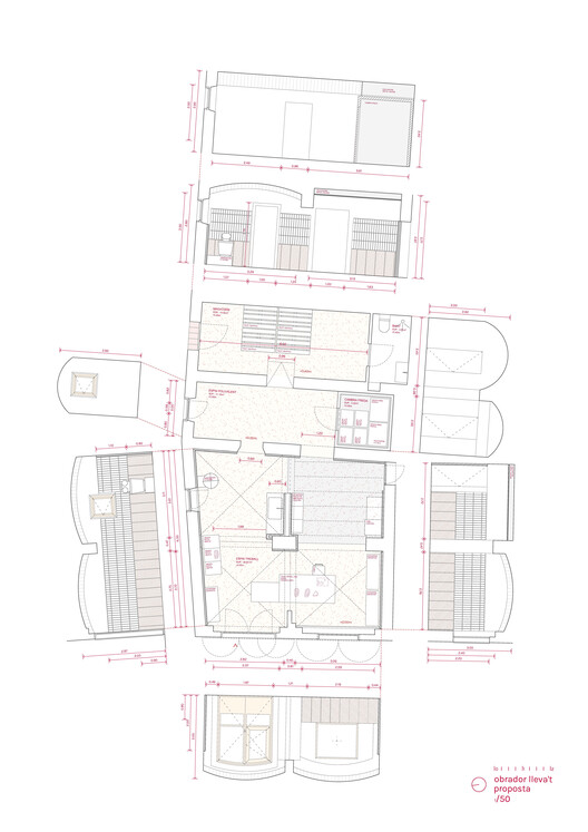
El diseño se desarrolla como una secuencia de tres espacios interconectados, cada uno con su propia escala, sistemas arquitectónicos y atmósfera, pero todos formando una narrativa espacial coherente y continua. El espacio principal, situado en la esquina entre la calle dels Fossos y la calle Bellaire, es un gran espacio diáfano sostenido por una columna central y cubierto por tres bóvedas cerámicas y un techo de vigas y losa de hormigón. Este gran espacio conforma el núcleo físico y simbólico de la panadería. Se adapta a actividades básicas (amasar, dar forma y hornear) manteniendo una geometría abierta e indivisible que hace que el proceso manual sea visible desde la calle. El espacio se convierte así en un escenario para la elaboración del pan, transformando el trabajo diario de los artesanos en un ritual compartido y transparente.

Desde este taller central, el proyecto pasa a una segunda nave, más estrecha, con media bóveda cerámica que contiene la cámara de fermentación y áreas auxiliares de trabajo. La continuidad de materiales y proporciones asegura un flujo funcional natural. Finalmente, la secuencia finaliza con un tercer espacio, algo más amplio, accesible desde la calle Bellaire, con media bóveda revestida de piedra y argamasa de cal. La última área alberga instalaciones sanitarias y de almacenamiento, soporte logístico que mantiene la eficiencia del complejo sin interrumpir el ritmo espacial del proyecto.

En todo momento, la intervención demuestra un profundo respeto por las estructuras existentes. Se han conservado y resaltado los muros de piedra originales, las superficies irregulares y la pátina del tiempo. En lugar de reconstruir, los arquitectos limpiaron y reposicionaron para revelar la verdadera naturaleza física del lugar. El resultado es una arquitectura que revela en lugar de ocultar: una colaboración silenciosa entre lo antiguo y lo nuevo.

Introducir nuevos elementos a través de la honestidad constructiva y el lenguaje mesurado. Los pisos continuos de concreto pulido con un toque de tonos tierra brindan unidad visual y calidez. Las paredes están conectadas por dos bandas horizontales: la base inferior está formada por piezas cerámicas de gran formato (hasta 90 cm), duraderas y fáciles de limpiar, y la banda superior está formada por pequeños azulejos blancos esmaltados, de hasta dos metros de altura, que potencian la luminosidad y realzan los gestos cotidianos. Se mantuvieron las aberturas para mantener la relación del edificio con la calle, y la nueva carpintería de madera oscura armoniza con la paleta de colores. La entrada principal es una puerta con ventana convertible que sirve como mostrador de ventas y como umbral que desdibuja los límites entre el interior y el exterior.


El diseño interno sigue una lógica circular alrededor de una columna central, lo que garantiza un flujo de trabajo intuitivo y sin intersecciones. Las mesas móviles de madera de haya permiten flexibilidad, mientras que los elementos fijos de acero inoxidable organizan las zonas de limpieza y apoyo. El horno colocado debajo de la losa de hormigón ancla el espacio tanto funcional como simbólicamente, y su posición permite un techo técnico discreto manteniendo la pureza del volumen abovedado.

En última instancia, Forn Carrie’t es una arquitectura de servicios que mejora en lugar de inventar, colabora en lugar de imponer. A través de la sinceridad material, la claridad espacial y la empatía situacional, transforma un humilde almacén en un lugar de producción, encuentro y memoria. Al devolver el acto de hacer pan a las calles, se reactiva la vida colectiva y se reafirma el poder de la arquitectura para sostener el patrimonio, transmitir conocimientos y tejer comunidad.
