Casa GF/WINTERI Arquitectura


Descripción de la presentación del equipo del proyecto. Casa GF es una casa unifamiliar ubicada en la comunidad fresaRegión de Los Lagos, Chile. Se ubica en el nivel más alto del terreno y ofrece vistas únicas al lago Ranquihue y a los volcanes Osorno y Calbuco. La estrategia del proyecto se basa en Mejore las vistas de los monumentos naturales y aproveche la luz solar para lograr una mayor eficiencia energética.

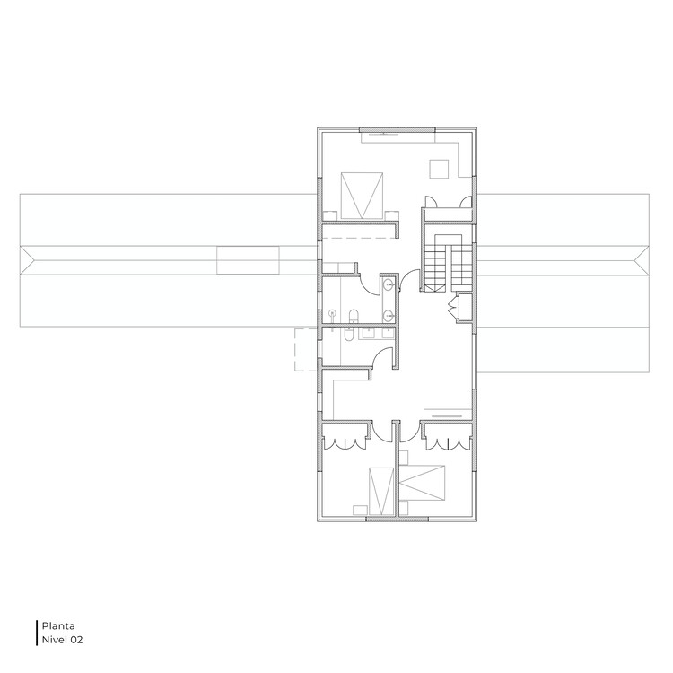
El proyecto se divide en dos plantas con una superficie total de 288 metros cuadrados. Un plan de intersección que consta de dos volúmenes desplazados conectados por un gran espacio público en la bóveda central. El desplazamiento de estos volúmenes soluciona el problema de las zonas de servicios como pasillos, aparcamientos y salas de máquinas. La bóveda central es el eje continuo del quincho-salón-comedor-cocina, completamente orientada hacia el paisaje, y se enfatiza por los paneles de muro cortina de doble piel que acompañan esta área y permiten liberar vistas, convirtiendo este espacio en un punto de observación protegido.



Una de las estrategias para maximizar la eficiencia energética fue posicionar los espacios públicos y dormitorios de acuerdo con la trayectoria del sol, enmarcando estratégicamente el paisaje desde el interior a través de aberturas para permitir la iluminación natural adecuada y mejorar la relación con el medio ambiente.


La elección de los materiales (tejas de alerce reciclado en toda la envolvente, cubierta de zinc en tonos rojizos, madera nativa y puertas corredizas en la entrada) fue parte del esquema de diseño, que buscaba Reinterpretando la tradición rural de la arquitectura del departamento, salvando los elementos singulares de galpones, cuadras y habitaciones. La simetría de los volúmenes en todas las fachadas busca el equilibrio y el control visual en todas las direcciones de la casa. Su estructura está formada por radiaciones de hormigón que se elevan desde el terreno natural, con tabiques de madera reforzados con barras de acero y colocados con precisión en voladizos.
