Casa Mascadalt / Fran Silvestre Arquitectos


¿Es posible restaurar una forma de vida? ¿Se puede hacer con tanta habilidad como restaurar un objeto antiguo?

Este proyecto nace de comprender primero y luego intervenir sólo cuando sea necesario. Situado en el corazón del Serrat de la Cadalt, el encargo del proyecto incluía actualizar una masía abandonada y adaptarla a las necesidades contemporáneas.

Al reinterpretar la tradición, se conservaron los volúmenes y las tipologías originales, modificándose sólo las partes esenciales. Se respetó el tamaño de los espacios existentes, permitiendo que cada espacio forme parte del nuevo programa.. Los nuevos residentes dejan atrás su vida londinense y comienzan una nueva etapa en el ambiente tranquilo y luminoso de Girona entre los árboles. Quizás este proyecto sea también un buen ejemplo de una idea que empezó a gestarse en los años noventa: la posibilidad de trabajar desde cualquier lugar. Su actividad profesional en Londres se mantiene intacta, pero ahora se desarrolla en un entorno natural excepcional.

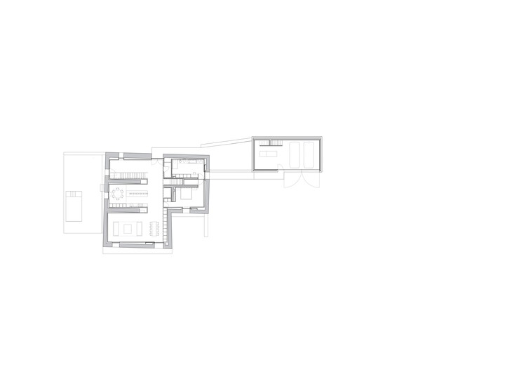
La planta de entrada alberga la cocina (que contiene tres veces la altura de la torre existente) y el salón con vistas a la Sierra de la Cadalt. Hay dos habitaciones en la planta superior, y el espacio original para animales en la planta inferior fue reinterpretado como una sala multifuncional. El espacio contiguo que antiguamente albergaba elementos de la finca ha sido reutilizado como garaje, y en su planta superior se ha dispuesto un estudio, donde el diseñador Terence Woodgate dirige su trabajo.

El sistema constructivo tradicional de este tipo de masías gerundenses, habitual en el Empordà, se basa en muros de carga de piedra caliza de mampostería irregular, conectados mediante mortero de cal aérea.. Esquinas, dinteles y jambas están elaborados en sillar cuidadosamente tallado, aportando precisión estructural y estabilidad al conjunto. Internamente, las paredes solían estar cubiertas con cal y ceniza de arena, seguidas de una capa final de cal hidratada. Este acabado facilita la limpieza y, lo más importante, aumenta la luminosidad del espacio interior.



En la intervención actual, tras la reconstrucción y reparación de los muros de carga de piedra caliza, se añadió una capa de aislamiento térmico a base de corcho, que garantiza un mejor rendimiento energético. Para el interior se ha implementado una segunda piel que permite aumentar la luminosidad, mejorar las condiciones de mantenimiento e integrar discretamente todas las instalaciones necesarias para un uso residencial moderno. El pavimento también es de piedra caliza, manteniendo la consistencia material de la intervención.

El interior se concibe como el espacio entre la arquitectura y el diseño de producto. En este sentido, los enchufes eléctricos quedan a ras de las paredes y los elementos arquitectónicos se tocan en un punto, buscando cada decisión reflejar honestamente la época en la que se desarrolló la intervención, generando así un diálogo preciso entre lo existente y lo contemporáneo.

Desde el punto de vista energético y hídrico, la casa es completamente autónoma. La casa es altamente autosuficiente gracias a la instalación de paneles fotovoltaicos con baterías y un sistema de depósito de agua especialmente diseñado. Uno de los aljibes fue reconvertido en piscina donde poder refrescarse. Las hectáreas de tierra que lo rodeaban, algunas de las cuales estaban cultivadas, producían alimentos suficientes para satisfacer las necesidades de una pareja de ingleses que vivía en la masía.

A veces se dice que cuando alguien se embarca en una tarea creativa, en su estudio aparecen sus amigos y enemigos, su familia, todas sus vivencias y recuerdos, sus miedos y deseos. Pero si te tomas el tiempo necesario, todas se irán desvaneciendo poco a poco y, afortunadamente, eventualmente tú también lo harás.

Nos gusta pensar que este proyecto se desarrolló a partir de esta actitud: partir de la espontaneidad de reunir las partes rotas y añadir sólo las que faltan.

Arquitectura