Casa Aer / Estudio Kyriakos Miltiadou


Descripción de la presentación del equipo del proyecto. Situado cerca de un pequeño bosque con impresionantes vistas de los suburbios. NicosiaLa casa está construida de una manera deliberadamente ambigua: en lugar de la tipología tradicional de una vivienda que se abre al exterior, permitiendo vistas ininterrumpidas del paisaje circundante, actúa como una caja austera que mira hacia adentro. ¿Es un edificio, una escultura o un contenedor? La propuesta es una elaboración de viviendas originales y su reinterpretación en relación con los patrones contemporáneos de vida familiar.


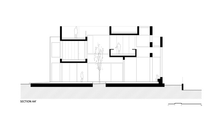
El diseño comenzó con una cuadrícula tridimensional: una cuadrícula de puntos que forman el contorno básico de una caja con un plano de 14×17 metros. Fragmentos del paisaje se van filtrando poco a poco en la caja, provocando que ésta se vaya rompiendo poco a poco. A través de este proceso sistemático de erosión, emergen prismas complejos compuestos de vacíos y sólidos.

Cuatro paredes verticales de seis metros de altura rodean la caja, dividiendo su volumen en un todo coherente pero fluido. Inscritas con incisiones verticales, estas paredes actúan como mediadores entre los mundos interior y exterior: filtran, protegen, enmarcan y revelan, promoviendo una relación dialéctica con el bosque, la ciudad y el cielo.

Como “coleccionista”, la caja absorbe las capas tangibles e intangibles del entorno y reinterpreta su relación con la vida doméstica del hogar. Lo que emerge morfológicamente es al principio desconocido y muy primitivo: un cubo anidado dentro de otro cubo. Un sobre sencillo pero perforado está envuelto dentro de otro sobre, erguido como una piedra antigua dentro de su contexto.

Un hueco vertical en la fachada este sirve como entrada, enfatizando la transición del exterior del edificio al mundo interior. El primer encuentro es un jardín abierto pero protegido: un espacio central que se convierte en un elemento clave en el desarrollo de la vida diaria de la familia.


Este punto focal es parte de una red continua de espacios exteriores, pasillos y terrazas que rodean el volumen del edificio tanto vertical como horizontalmente. Están plantados con vegetación nativa y llenos de luz natural desde arriba, creando un “jardín” interior único dentro del paisaje más amplio.

Internamente, la casa se divide en cuatro niveles distintos. En el primer piso se encuentran las áreas comunes, cocina, comedor y sala de estar. En la planta superior, las habitaciones privadas se distribuyen en dos plantas diferenciadas. Se utilizan espacios intermedios para proporcionar una disposición fluida entre las unidades funcionales de la casa, difuminando los límites entre los ámbitos público y privado de la vida doméstica.

Una escalera exterior oculta conduce a una pequeña terraza en la azotea. Aquí, la cubierta se mimetiza con el intenso azul del cielo mediterráneo, mientras que la mayor parte de su superficie está cubierta de vegetación, lo que favorece la creación de un microclima. Una abertura horizontal en el otro extremo crea una vista encantadora del bosque.


El diseño estructural y arquitectónico opera como una entidad unificada. El edificio es monolítico y está construido íntegramente con hormigón visto. La superficie esculpida envuelve la actividad humana, transformándola en un espacio habitable. La vegetación crece gradualmente y suaviza la presencia general de la estructura. La interacción entre la actividad humana, la arquitectura y la naturaleza se vuelve continua e inseparable.
