Escuela Julio Verne/Barré Lambot Arquitectos


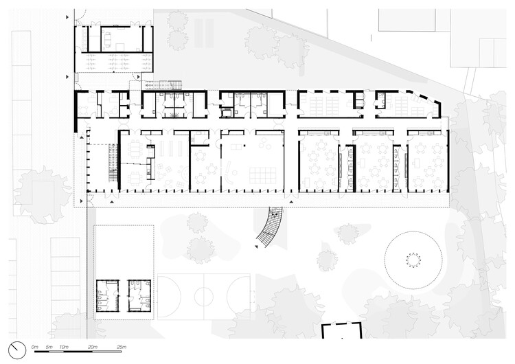
Descripción de la presentación del equipo del proyecto. El complejo escolar Julio Verne incluye Hay tres aulas de preescolar y sus áreas para sentarse adyacentes en el primer piso, y siete aulas de escuela primaria y un estudio de artes visuales en el primer piso. El área administrativa está ubicada cerca de la entrada en la planta baja e incluye espacios técnicos, oficinas y salas de personal. La biblioteca, el área de actividades extracurriculares y el salón de motricidad también se encuentran en el primer piso, adyacente a las aulas de preescolar y al salón principal.

El proyecto está ubicado en una parte de la antigua “Ciudad de Auroville” donde una vez estuvieron cinco edificios residenciales, ahora demolidos. Ubicadas en el centro del jardín, las torres brindan aperturas visuales a Dawn Street y pasillos que conducen al fondo boscoso.

El resto de la calle Aurore se caracteriza por una disposición escalonada de edificios, setos y vallas que marcan las entradas a las casas, las fachadas de la guardería y del comedor de la escuela, y la valla opaca de la escuela secundaria Jules Ferry.


La remodelación del sitio presentó varios desafíos clave:
¿Cómo mantener la continuidad de Dawn Street conservando al mismo tiempo su apertura visual única frente al telón de fondo arbolado? ¿Cómo crear una nueva secuencia urbana para iniciar el desarrollo de futuras viviendas en la zona sur de la antigua Auroville? ¿Cómo se pueden integrar importantes equipamientos públicos en el tejido suburbano ya establecido?

El edificio se extiende por todo el solar, preservando la apertura visual de la zona boscosa hacia el oeste, visible desde la calle Oral. Su cresta mira hacia la calle, definiendo y enmarcando el campus.
El diseño está orientado de noreste a suroeste, maximizando el área de contacto entre la fachada y la terraza orientada al sur. Permitir que tantas aulas como sea posible tengan acceso directo a espacios al aire libre..


Los Los pasillos y aleros de los pisos superiores brindan protección solar al tiempo que extienden las aulas hacia el exterior. También sirven como vías secundarias de circulación exterior y ayudan a facilitar el tráfico interno. La parte norte del sitio está diseñada como un jardín educativo, un amortiguador tranquilo entre la zona residencial y el edificio, con su fachada más tranquila.

La forma compacta del proyecto garantiza una disposición clara y eficiente de los diversos espacios de la escuela al tiempo que maximiza su relación con el patio generosamente plantado.

Reflejando la sencillez y racionalidad de su organización espacial, De la estructura del edificio destaca su armazón de madera. Una “mesa” de hormigón compuesta por paneles moldeados in situ y paredes prefabricadas aisladas forma la parte norte de la planta baja. Esta zona alberga zonas de servicio y estancias con mayores exigencias de insonorización. A esta base se anclan semimarcos de madera que soportan losas de suelo mixtas de madera y hormigón. En el nivel superior, una estructura de madera continúa la retícula de la planta baja, formando todo el volumen superior.

La envolvente con estructura de madera cuenta con aislamiento de base biológica (lana de madera, cáñamo y tejidos reciclados) Bajo un mantillo de alerce teñido. Las ventanas compuestas de roble y aluminio siguen el ritmo estructural del edificio y armonizan con la paleta general de materiales.

Edificio Educativo