Casa Juan Cano I / PPAA

Año:
2023
Año:
2023

Descripción de la presentación del equipo del proyecto. Juan Cano estaba ubicado en ciudad de méxico con un Tipología Casa adosadaque continúa creciendo en contextos urbanos para satisfacer las necesidades del crecimiento demográfico.

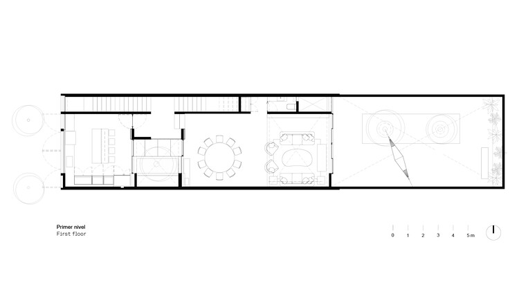
Una característica de este modelo urbano es una propiedad angosta, por lo que para incorporar los requerimientos de un lote con un frente de 6m x 30m, se optó por una casa vertical que ocupara un área abierta más pequeña y de esta manera utilizara el resto para crear vacíos que brindaran transparencia visual de un lado a otro.


El edificio está dominado por los árboles existentes en el terreno que decidimos proteger. Al frente, en una zona desprovista de vegetación, se sitúa un volumen arquitectónico que acoge esta función, mientras que al fondo se convierte en terraza, ofreciendo nuevas posibilidades de uso a lo largo del día. Este enfoque permite que la casa se abra a la calle y al patio simultáneamente, creando un eje este-oeste que controla las vistas, la circulación y la distribución del espacio. Por otro lado, para dotar a la casa de mayor privacidad sin desconectarla de la calle, se elevó un nivel la zona de estar.



Las diferentes plantas están conectadas por una escalera continua, permitiendo llegar directamente a cualquier espacio sin recorrer toda la casa; Se puede llegar al estudio del último piso directamente desde la calle sin pasar por otras áreas.


Un aspecto importante del diseño es La casa desaparece en el contexto urbano y, como resultado, la fachada se vuelve negra. Por otro lado, el interior apuesta por tonos claros para las paredes y cálidos tonos de madera para el mobiliario y la carpintería.



Juan Cano I es un proyecto que busca nuevas propuestas de evolución de patrones habitacionales, partiendo de la idea de habitar una casa de dos maneras y momentos: exterior e interior, construida y no construida.
