Dentro de una casa junto al lago que convierte las pendientes empinadas en una vida relajada

Encontrar un lugar sobre el lago Chelan, Washington, fue una certeza instantánea. Una pronunciada caída de 80 pies y vientos constantes son obstáculos reales, pero los viñedos, las escarpadas montañas Cascade y el vasto lago que se encuentran debajo son imposibles de ignorar. arquitectos johnston Asuma desafíos con confianza, trayendo consigo una amplia experiencia en entornos complejos. El equipo trabajó en conjunto para crear una casa familiar que celebra la vida al aire libre, disfruta de vistas en todas direcciones y se integra con su entorno.

El diseño comienza con la tierra. Un diseño de terraza guía a los visitantes desde el garaje superior por una escalera protegida, ofreciendo vislumbres de las montañas antes de revelar un panorama completo. Los muros de contención y las rocallas estabilizan la pendiente pronunciada manteniendo al mismo tiempo el espacio exterior utilizable.
El acero, el hormigón, el abeto y el cedro de nudos apretados aportan textura y durabilidad para resistir el clima cambiante del lago Chelan. El techo del cobertizo y el marco de masa bien pensado brindan vistas ininterrumpidas, conectando casi todas las habitaciones con el paisaje.


La sostenibilidad es una prioridad, con ventanas de alto rendimiento, súper aislamiento, acabados con bajo contenido de COV y materiales con alto contenido reciclado que garantizan que el hogar sea ambientalmente responsable y energéticamente eficiente.

La entrada pasa por ventanas altas, cálidos revestimientos de cedro y suaves plantas rozadas contra adoquines de hormigón. La puerta de entrada está ubicada debajo de un voladizo silencioso, enmarcada por vidrio para absorber la luz del día. Una mezcla de revestimiento metálico, tonos de madera y líneas arquitectónicas limpias crean una transición tranquila desde la escarpada ladera al interior.


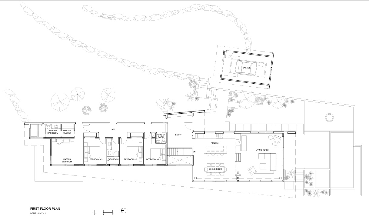
La gran sala, la cocina y el comedor están dispuestos para abrirse directamente a la terraza al aire libre. Este diseño simplifica la organización, ya sea que se trate de una reunión de un grupo pequeño o de extender el evento a la piscina y al patio.

La sala de estar, que desciende de la cocina y el comedor, está ubicada centralmente en el piso principal y logra un equilibrio entre texturas acogedoras y vistas panorámicas. Los candelabros, muebles y obras de arte antiguos suavizan los materiales estructurales y reflejan calidez y carácter.
La planta principal también alberga un dormitorio y un baño, proporcionando una distribución cómoda para el confort diario. Su diseño mantiene la mayor parte del espacio importante de la casa en un solo nivel, permitiendo que la sala de estar permanezca conectada a las habitaciones privadas sin interrumpir la apertura de la gran sala.

El tocador incorpora audazmente un llamativo papel tapiz botánico, llenando el pequeño espacio de color y movimiento. Un sencillo lavabo de pared y un sutil espejo enmarcado aportan equilibrio a la habitación.

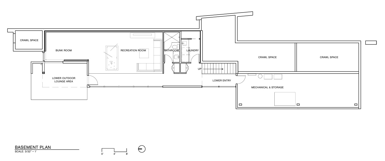
Una llamativa escalera flotante conecta los dos pisos y actúa como un divisor escultórico. Al descender a la terraza inferior se encuentra una sala familiar, una sala de literas y un espacio recreativo. El nivel permite que la casa parezca de un solo piso en ciertas partes del sitio, minimizando el impacto visual y al mismo tiempo proporcionando áreas internas generosas.


Lake Chelan House es el resultado de la estrecha colaboración de Johnston Architects con la familia, respaldada por representaciones 3D que ayudaron a dar forma a cada decisión.


La casa resultante ofrece una vida interior y exterior perfecta, materiales resistentes y habitaciones que se adaptan a la topografía circundante. Lo más importante es que brinda espacio para que generaciones se reúnan, jueguen y aprecien la poderosa belleza del lago Chelan.