DJ House/Atelier Matteo Arnone + Falcão Tuan Arquitectos + Core Concept


Descripción de la presentación del equipo del proyecto. El proyecto del Atelier Matteo Arnone para Quinta do Álamo representa un diálogo entre el pasado y el presente, la memoria de la tradición vitivinícola y la modernidad de una casa diseñada para dos DJ. Quinta está situada en Carnota, en el municipio de Arunquel, a sólo 40 minutos de Lisboa. Rodeada de viñedos con una larga historia de producción de vino, la Quinta ofrece un entorno natural y cultural único.


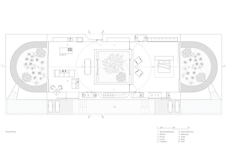
La arquitectura de Quinta cobró vida mediante la renovación de las ruinas originales, una antigua bodega utilizada originalmente para almacenar tinajas de vino. El proyecto transforma esta memoria histórica en una residencia contemporánea caracterizada por una planta perfectamente simétrica y una fuerte conexión entre los espacios interiores y exteriores. En la planta baja, las estancias principales -salón-cocina y dormitorio individual- se disponen de forma simétrica y abiertas al patio semicircular que rodea el espacio.


Estos patios no sólo definen los límites entre interior y exterior; Convierten este umbral en un elemento estético y armonioso. Su forma curva elimina las esquinas afiladas, promueve la continuidad fluida, elimina la separación física y crea rincones privados bañados por luz natural. El tercer patio, ubicado entre los dormitorios y el salón-cocina, introduce una dimensión más íntima: no sólo aporta luz al estudio de grabación de arriba, sino que también crea una sutil conexión visual entre los espacios habitables.


La solución arquitectónica se distingue por el uso de gruesos muros perimetrales, en los que se integran los elementos funcionales esenciales de la casa. Estos muros no sólo tienen una función estructural; integran funciones como escalera al estudio superior, espacio de almacenamiento y muebles empotrados. Esta elección garantiza una estética sencilla pero ordenada, optimizando la organización general del edificio.

El estudio de grabación de arriba tiene forma circular, encarna el alma creativa de la casa y está diseñado para satisfacer las necesidades profesionales de los propietarios.
