Torre Sapiencia / Estudio de Arquitectura Bogotá


Descripción de la presentación del equipo del proyecto. El proyecto surge del Plan Maestro de Infraestructura 2008-2028, que tiene como objetivo abordar las áreas de educación superior y posgrados, por lo que nació de la ampliación de una segunda opción para estudiantes en el norte de la ciudad, en esta zona. Bogotá Importante crecimiento en oficinas y propiedades residenciales. El sitio de implementación del proyecto está ubicado frente a la vía principal de la ciudad. El tramo de la carretera es ancho (100 metros) y el volumen de tráfico es suficiente. Por lo tanto, el El edificio cumple dos premisas: por un lado, evaluar el estado de los volúmenes de forma diferente en función de la dirección y velocidad de aproximación; por otro lado, humanizar las difíciles condiciones urbanas proporcionando acceso a balcones ajardinados en el segundo piso, convirtiendo así la entrada al edificio en un placer.


Esta ubicación en esquina convierte el edificio en un referente para la industria y la ciudad, con un volumen impresionante pero respetuoso con el medio ambiente. A nivel de espacio público, el amplio y transitable jardín frontal permite a los peatones recuperar el espacio de circulación agradable y espacioso perdido.es el prólogo del proyecto, lo que permite visitar y entrar fácilmente al edificio de una sola planta.


Por materialidad, hemos optado por reflexionar sobre las siguientes oportunidades específicas: Bogotá El uso del ladrillo como material especial para edificios de oficinas contrasta con la tendencia actual de los muros cortina que son muy utilizados en todo el mundo.


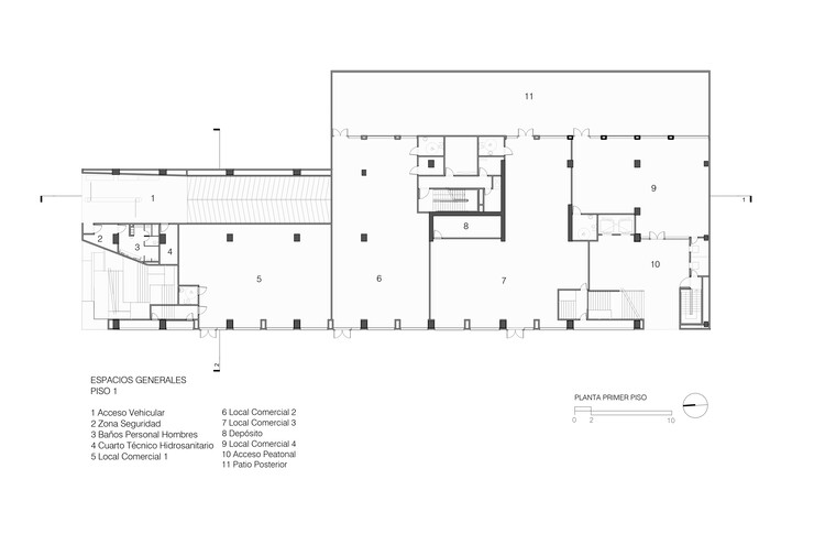
El edificio de 19.163 metros cuadrados consta de tres sótanos y 10 plantas, además de una azotea transitable que ofrece impresionantes vistas de 360 grados de la ciudad. El sótano corresponde al estacionamiento, escaso en este sector y servicios generales, los dos primeros pisos están dedicados al comercio por su evidente proximidad a los peatones. El hall de entrada principal de la torre se ubica en el balcón jardín del segundo piso, sobre la ciudad, evitando el tránsito peatonal de la propia zona, permitiendo admirar la ciudad.

Finalmente, los pisos 3 al 10 están dedicados a educación, salud y oficinas. El piso Javeriano atiende cursos extendidos (educación continua) y algunos posgrados, donde brindaremos un espacio con varias instalaciones para los egresados del programa “coworking”, el Centro Intercultural y Plurilingüe de la Escuela Javeriana de Comunicación e Idiomas, así como servicios de alimentación para la comunidad educativa y terceros que quieran utilizar las instalaciones.
