Casa Cortar, Doblar, Doblar, Jugar / Matharoo Associates


Descripción de la presentación del equipo del proyecto. La casa de un empresario inmigrante, su esposa y sus tres hijas se encuentra en chennaiuna metrópoli en el sur de la India. El largo y estrecho terreno mide 12,5 x 31 metros, con sólo una esquina abierta que lo conecta con el callejón sin salida. Rodeada de casas en tres de sus lados y de un alto edificio de apartamentos en su lado más largo, deja poco espacio para la luz y la ventilación, y carece de privacidad.

Los desafíos planteados por el medio ambiente se vieron exacerbados por las estrictas limitaciones impuestas por Vaastu, que tuvieron que incorporarse al diseño. Estos principios establecidos del diseño arquitectónico tradicional indio se derivan de la mitología y desafían la lógica de la planificación espacial racional y situacional. Asigna posiciones fijas a los puntos base de diversos espacios y elementos, incluyendo la entrada, los dormitorios y la cocina, hasta la dirección donde duermen las personas y la dirección del baño.



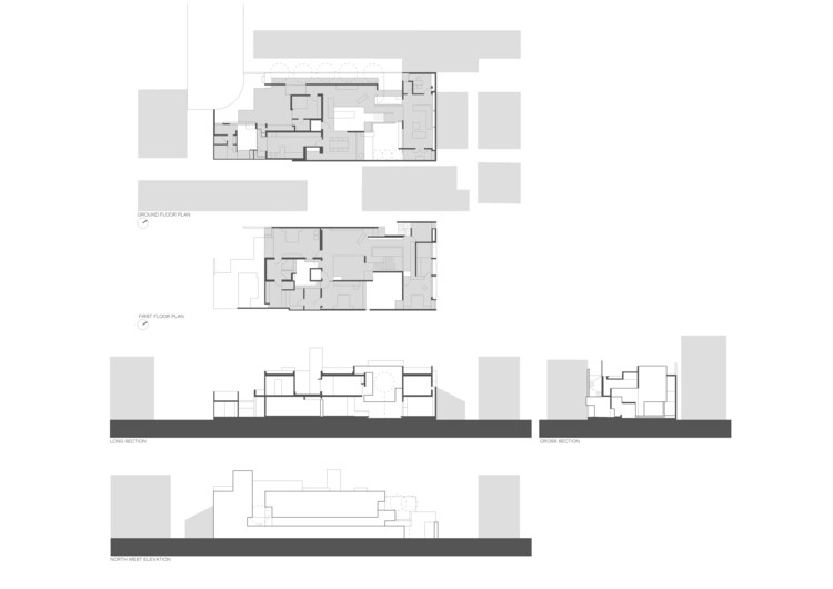
Aprovechando las regulaciones de planificación de la ciudad que permiten la construcción de pared a pared, la casa se extiende hasta los límites del terreno en tres lados para maximizar el área utilizable y utilizar el espacio restante que de otro modo no se usaría. Planos de hormigón rodean el perímetro, formando una cáscara monolítica que protege su contenido del mundo exterior. Sólo una vez dentro el avión se despliega para revelar su centro vacío.

Inspirándose en el concepto de los patios tradicionales indios, se excavaron grandes huecos en el interior para permitir la entrada de abundante luz, aire y vegetación. La mayor de estas terrazas está ubicada en el centro de la casa y se extiende ininterrumpidamente hacia el nivel del suelo, creando un plano de planta abierto y flexible que alberga las áreas de estar de la casa. Separa y conecta las áreas de estar formales con las áreas privadas laterales, formando el corazón de la vida familiar donde las actividades pueden converger. Los patios más pequeños se ubican en ambos ejes del patio central, conectando visualmente todo el largo y ancho del terreno. Las áreas privadas se elevan al nivel superior de la casa, abriéndose a terrazas secundarias más pequeñas y al borde del contexto del vecindario a través de ventanas estratégicamente ubicadas.

Las escaleras, paredes y pisos se ven desde ángulos diferentes a los de su función estructural básica. Debido a la ausencia casi total de columnas en la planta baja, la estructura está mayoritariamente suspendida arriba y se percibe como un plano de hormigón tridimensional continuo que rodea y conecta la casa en un espacio continuo y sin fisuras. Estos planos cortan, se doblan y pliegan, creando un concepto perceptible de movimiento dentro de la casa: una composición de estructuras aparentemente ligeras que mantienen un equilibrio delicado y precario y están en juego.
