MOMORIAL LOS Mártres de la Iglesia de mangyeong / Aev Architectures + Tonn Architects


Un lugar de memoria y reconciliación creado por la luz.
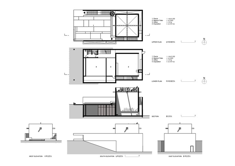
Se ha establecido un profundo espacio conmemorativo en Mangyeong, una tranquila ciudad a tres horas al sur de Seúl. Hay una tarifa para este monumento. En memoria del pastor Kim Jong Han, martirizado en la Guerra de Corea, y de los quince creyentes de la Iglesia Wanqing. 1950. Salón Conmemorativo de los Mártires de la Iglesia de Wanqing No es un monumento tradicional sino un poderoso símbolo de recuerdo, renovación y esperanza para una comunidad rural. Lucha contra la despoblación y la erosión de la identidad cultural.

Monumentos inmateriales: la arquitectura como “expresión atmosférica”
El monumento se distingue por su monumento inmaterial único. Rechaza deliberadamente la representación física, optando en cambio por profundas expresiones espaciales y atmosféricas. este El mártir no es inmortalizado mediante estatuas o iconografía; más bien, su presencia se evoca a través de la orquestación de luz y sombra naturales dentro del espacio arquitectónico. A medida que el sol se mueve por el cielo y las estaciones cambian, sus siluetas simbólicas aparecen y desaparecen, sólo visibles “cuando el cielo lo permite”. Este diseño efímero y poético aporta una profunda resonancia simbólica al espacio, dándole una presencia espiritual tranquila pero poderosa.





Materiales humildes y arte colaborativo.
Diseñado por el arquitecto franco-coreano Woojin Lim, el edificio muestra un carácter claramente humilde e introspectivo. se usa hormigón enrejado expuesto Gracias al uso de encofrados de madera y al uso de una paleta de materiales terrosos. Dentro de las limitaciones de un modesto presupuesto público, el proyecto creció orgánicamente hasta convertirse en una plataforma colaborativa. Reuniendo a artistas de renombre internacional– incluido el renombrado escultor italiano Andrea Roggi – para crear un diálogo significativo y poético entre el arte contemporáneo y la arquitectura de Shensi.

La memoria es la base para un futuro avivamiento.
Este monumento no es sólo un conmovedor homenaje al pasado; Un importante espacio de reflexión sobre la historiainteractúa con el presente e inspira el futuro. Encarna una idea poderosa: La memoria en sí misma puede ser una base importante para la regeneración cultural y social. áreas que pueden haber sido pasadas por alto.
