Casa Tneib / Abdel Qader Tarabieh Arquitectura


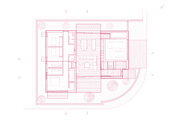
Descripción de la presentación del equipo del proyecto. La casa se presenta como un santuario tranquilo e introvertido, girando su interior hacia la calle y protegiendo su mundo interior de la vista del público. Desde el exterior aparece como una serie de muros de piedra bajos, sólidos y continuos, casi monolíticos debajo de losas de hormigón. Estos muros no sólo encierran; Definen un umbral dentro del cual el ritmo de la familia se desarrolla en un silencio medido. El diseño se inspiró en la historia local y la arquitectura islámica, con patios interiores y espacios cerrados que aportan reflexión y tranquilidad.




En el centro se encuentra el espacio habitable, flanqueado por dos volúmenes sólidos, uno que alberga eventos nocturnos privados y el otro áreas de servicio. Entre ellos se sitúa el salón, formando un espacio diáfano. Grandes puertas corredizas de vidrio se retraen hacia el muro de piedra, fusionando el interior con el exterior, y se extienden hacia la terraza y el jardín bajo un dosel de concreto. Mirando hacia el patio, el antiguo olivo recuperado se convierte en un ancla atemporal de la memoria, que vincula el hogar con el tiempo, el lugar y la historia.



La materialidad da forma a la experiencia. Las paredes exteriores están talladas en piedra blanca local y dispuestas en un tranquilo ritmo horizontal que ancla la casa. Las suaves maderas naturales y los tonos apagados del interior crean una atmósfera tranquila que evoca calidez y serenidad. Los muros gruesos brindan sombra y refugio, mientras que las terrazas aportan luz, vegetación y aire. Al mismo tiempo protectora y espaciosa, moderna pero arraigada, la casa es un santuario para vivir con claridad, calma y diálogo contemplativo con la historia.
