Invernadero/Anna y Eugenia Bach


Descripción de la presentación del equipo del proyecto. Disfrute del espacio exterior. Cocine, coma y comparta la tarde con amigos en la sala al aire libre bajo las exuberantes hojas de baniano. Convertir el jardín existente en otra habitación de la casa crea un oasis en el vecindario donde se pueden desarrollar la mayoría de las actividades diarias.mientras disfrutamos de un agradable clima mediterráneo.

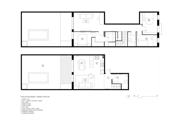
El proyecto consiste en la reforma y ampliación de una casa de dos plantas con un pequeño jardín en planta baja entre tabiques.


La casa existente tiene cocina y comedor en el primer piso, conectados al jardín, y un dormitorio en el primer piso, pero no sala de estar. La premisa de partida del cliente es Renueve y amplíe su hogar dándole un nuevo espacio para interactuar con el mundo exterior.


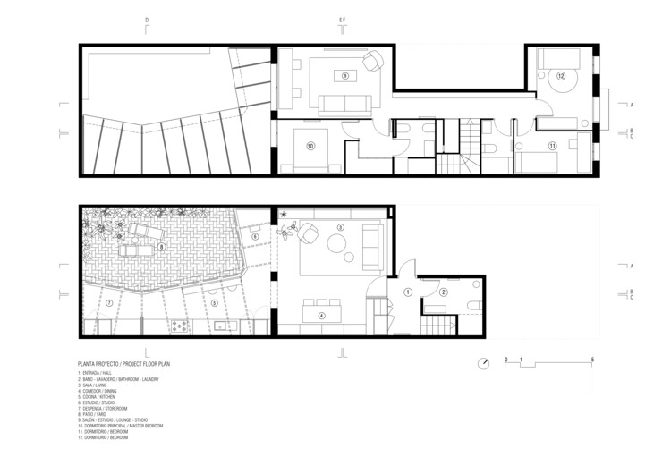
La propuesta comenzó replanteando el problema, en lugar de agrandar la casa con esta pieza, trasladamos la cocina al exterior para liberar espacio en el interior para la sala y el comedor. De esta forma conseguimos que todos estos componentes estén en contacto con el espacio exterior y desde todos ellos podamos conseguir vistas entre ellos y al jardín.



El nuevo edificio es una estructura de madera y vidrio que actúa como un invernadero, que nunca recibe suficiente luz solar debido a las sombras proyectadas por el propio edificio y sus vecinos. Por otro lado, al ser parte transparente conseguimos que el resto de la planta baja siga disfrutando de luz natural.

La nueva fachada de la ampliación se separa de la orientación vertical del edificio, dejando ver los dos arcos que originalmente rodeaban el espacio interno, que ahora actúan como transición entre el salón-comedor y la nueva galería con cocina y estudio. Al separar la fachada de la orientación vertical del edificio, la nueva envolvente rompe con las directrices del edificio existente, realizando pequeñas deformaciones que permiten más espacio en las zonas más activas: el interior y el propio patio.

En el primer piso de la casa se realizaron pequeños cambios en el mobiliario de las habitaciones y se rediseñó la sala/estudio con el objetivo de no interferir con áreas que no eran absolutamente necesarias.
