Saltar enlaces

Casa Roja/Estudio Pacarizi

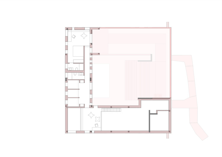
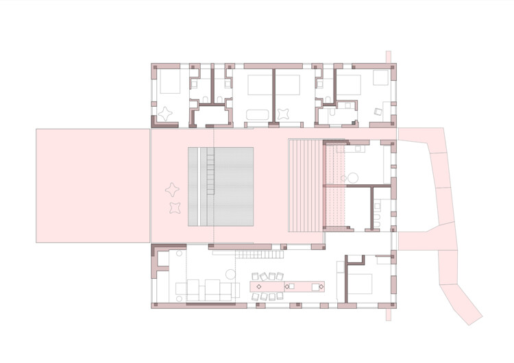
Casa Roja / Pacarizi Studio - fotografía exterior, ladrillo, hormigónCasa Roja / Pacarizi Studio - fotografía exterior, fachadas, hormigónCasa Roja / Pacarizi Studio - Fotografía de interiores, madera, hormigónCasa Roja / Pacarizi Studio - fotografía exterior, hormigón, patio interiorCasa Roja/Estudio Pacarizi - Más imágenes+ 26

¡Hola! ¡Pregúntame lo que quieras!
Explore
Drag