Casa Auseva / Graus | ArchDaily Español


Descripción de la presentación del equipo del proyecto. Ubicado en la región sur. ciudad de méxicouna casa que parte de una premisa clara: depurar lo innecesario y revelar una arquitectura de orden, luz y contemplación. La propuesta responde a una búsqueda rigurosa de pureza geométrica y honestidad material, donde cada decisión de diseño está informada por la simplicidad formal y la sensibilidad espacial.

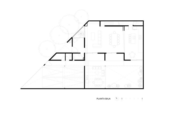
La casa no se impone sobre el terreno sino que se sitúa en el corazón de la propiedad, permitiendo que los espacios exteriores se conviertan en una transición viva entre diferentes núcleos habitables. Esta disposición mejora el equilibrio entre la autonomía funcional y la integración paisajística, creando una continuidad entre el interior y el exterior, ampliando la experiencia doméstica.

Uno de los ejes conceptuales del proyecto es una relación cuidadosamente modulada con el cielo. Cada ambiente establece un grado específico de apertura al astro: cándido en las áreas sociales, más inclusivo en los espacios íntimos, siempre atemperado por la luz natural como herramienta compositiva y atmosférica. Esta interpretación se traduce en gestos precisos, como la entrada principal concebida como una sala al aire libre que enmarca el cielo y convierte la llegada en un ritual determinado por el tiempo, el clima y la estación.


El sistema de escalera principal se propone como una secuencia dinámica en la que la luz incide en la planta del edificio de forma cambiante, provocando una percepción activa del recorrido. Dentro de lo visual, las esculturas están ubicadas estratégicamente para dialogar con los movimientos del usuario y enfatizar la dimensión sensorial ascendente.


En las habitaciones secundarias, los techos abuhardillados y las dobles alturas enriquecen los espacios interiores, mientras que los enchufes suspendidos abren interesantes y prácticas posibilidades. El dormitorio principal se eleva de manera similar: el techo a dos aguas enmarca el cielo desde las altas ventanas, amplificando la sensación de apertura y reforzando una estrecha conexión con el entorno natural.

La elección de los materiales – inclusivos, duraderos, esenciales – enfatiza el deseo de atemporalidad y sobriedad. La claridad de la organización espacial y la relación constante con la luz natural definen una arquitectura que no requiere decoración y prioriza los elementos esenciales: el tiempo habitado, el espacio y la vista.
