Casa MM / Equipo Lama


Descripción de la presentación del equipo del proyecto. Ubicada en São José do Rio Pardo, interior de São Paulo, Casa MM es una casa de una sola planta con un área de 630 m2, diseñada por el equipo de Lamas para una pareja que quería vivir cerca de su hija y su nieto, que ya estaban instalados en el mismo apartamento. Los requisitos eran claros: una casa confortable de una sola planta, con estructura de madera, tejado de cerámica y accesibilidad sin barreras.

Inspirada en el paisaje urbano original de la ciudad, marcado por proporciones simples de arquitectura vernácula y frontones cerámicos o techos a cuatro aguas, la casa evita referencias recientes a su entorno. En lugar de imitar el pasado, crea un diálogo con la identidad local a través de formas, materiales y gestos constructivos, adoptando un lenguaje tranquilo, contemporáneo y atemporal.


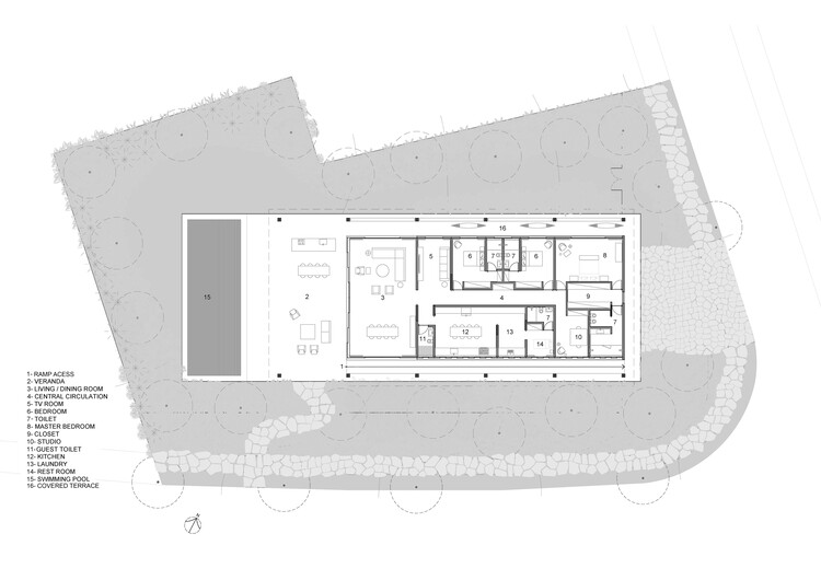
La casa se asienta suavemente sobre un zócalo de piedra en Santo Tomé y alberga el garaje, el almacén y las áreas técnicas. El volumen principal se ubica bajo un techo a dos aguas, sostenido por columnas de madera laminada, delineando la puntuación estructural y realzando la ligereza general. Una rampa lateral conecta los dos niveles, revelando gradualmente los jardines tropicales de Rodrigo Oliveira en un camino entre sombra filtrada y vegetación nativa.


La implementación central libera el terreno en todas direcciones, creando un respiro para las plantas y ampliando la integración con el medio ambiente. La ausencia de muros y la presencia de una valla metálica oculta por la vegetación preserva la privacidad sin destruir la continuidad con el paisaje.

La planta rectangular sigue una cuadrícula ortogonal, organizando fluidamente la estructura y el espacio. Las columnas ubicadas en ambos extremos liberan de soporte el ambiente interior. Las cerchas se extienden por 16,5 metros con un espaciamiento regular de 6,6 metros, y el cierre de vidrio frontal enfatiza la lógica arquitectónica y baña el interior con luz natural.

En el extremo que da al jardín, la terraza actúa como espacio de transición y convivencia. Se integra en la habitación con ventanas correderas en tres lados, eliminando las restricciones entre interior y exterior. Los programas están organizados simétricamente a lo largo del eje vertical. A la derecha se encuentran el baño, la cocina, el aseo y el despacho; a la izquierda están la sala de televisión, dos suites con espejos y la suite principal. Todos los dormitorios dan al norte y están protegidos por freijó muxarabis móviles, mientras que las habitaciones del lado sur cuentan con cobogós fijos de madera reinterpretados.


Los materiales naturales y las elecciones precisas definen la jerarquía espacial. Granito pulido, madera de peroba, ladrillos de arcilla y piedras étnicas forman una paleta sensual y cohesiva. El sistema de calefacción de la casa y la piscina funciona con energía solar.


En el interior, un silencio blanco alberga las obras y creaciones del autor. El mobiliario de Samuel Lamas convive con nombres como Sergio Rodrigues, Zalszupin, Castiglioni, Prouvé y Claudia Moreira Salles, formando un escenario que fusiona tradición y modernidad, ligereza constructiva y solidez técnica. Arraigada en lugares inspiradores, Casa MM propone una forma de vida sensible.
