Residencia de estudio JF / KG

- área:
600 Metro cuadrado
Año:
2024
proveedor: Atelier Carlos Motta,,,,, Augusta,,,,, Belcolor,,,,, Documental,,,,, Dpot,,,,, Eloísacortinas,,,,, exbra,,,,, Vaso 11,,,,, invernadero,,,,, colección itens,,,,, Jacqueline Terpins,,,,, Jader Almeida,,,,, Mica,,,,, Mejor nillato,,,,, Filicia,,,,, Objetos de estudio,,,,, astep

Descripción enviada por el equipo del proyecto. Ubicada en un apartamento en São Josédo, la residencia finalizó sus proyectos de construcción e interiores en 2024. La tierra de aproximadamente 700 metros cuadrados se implanta con un área de construcción de 600 metros cuadrados y se distribuye en dos niveles, con el objetivo de mejorar la coexistencia con la familia y la familia y los amigos. La propuesta busca un equilibrio entre la integración y la privacidad a través de la tolerancia y la practicidad de los espacios amplios y conectados que satisfacen las necesidades de la vida cotidiana.

La forma gestión de la gráfica ha disminuido ligeramente, lo que permite la implementación de fluidos y definidos. Las marcas de arquitectura Dos paredes longitudinales están cubiertas con piedras.estructura y organiza el espacio. El volumen superior de este dúo de elementos se colocará suavemente en el sótano.


En la fachada frente a la calle, los paneles opacos en el primer piso reservan la privacidad y la madera figuran en el piso superior. En la parte trasera, la residencia está generosamente abierta al jardín y el paisaje a través de un gran marco de vidrio Promueven la integración directa entre el interior y el exterior. Una paleta de materiales naturales, como la madera y la piedra, mejora el diálogo con el medio ambiente y crea una atmósfera cómoda.


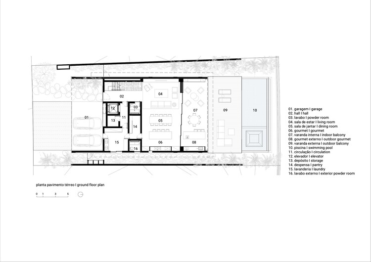
En el primer piso, la organización del medio ambiente sigue Ejes definidos por paredes estructurales: Por un lado, el espacio dedicado a los servicios está centralizado; además del área de alimentos, la cocina y la lavandería también están centralizadas. Por otro lado, hay áreas de existencia y coexistencia. La carpintería continua, con acabados blancos, imita puertas que permiten el acceso a entornos de soporte y servicio y garantiza la unidad visual. En el ala opuesta, se mantiene el mismo idioma: muebles personalizados que se extienden desde la entrada al balcón, áreas de televisión a través de la casa, que respaldan las actividades del nicho, las áreas de almacenamiento y los aparadores, lo que contribuye a la fluidez y la funcionalidad del conjunto.

Los muebles reúnen trabajos de diseño nacionales e internacionales y proporciona lo más destacado del sillón de mujeres para la mesa del centro Amorfa de Sérgio Rodrigues y Arthur Casas. La iluminación es valorada por los colgantes y lámparas de la marca italiana Astep, lo que complementa la escena.

Las escaleras ubicadas en el jardín interior conectan estos dos niveles con ligereza y prominencia. Los escalones de madera integrados en las paredes crean una sensación de suspensión, mientras que las aberturas zenitales en el techo de doble altura permiten que mucha luz natural ilumine el bucle circulante y parte de la sala de estar.


En el nivel superior, el dormitorio está protegido por una secuencia de madera y se abre hacia el paisaje. Los carpinteros Nogal aparecen rápidamente en la cabecera y los lados, creando un contraste armonioso con los tonos de otras superficies transparentes.

El paisajismo envuelve toda la residencia, combinando la madera contrachapada en el suelo con el jardinero en el balcón superior. Las especies de hojas mejoran la integración de la casa con sus propiedades circundantes. La gran apertura es propicio para la ventilación cruzada y la rica entrada de luz natural, asegurando un ambiente fresco y agradable, y es muy adecuado para el ocio y la coexistencia.

(Tagstotranslate) Arquitectura (T) Edificio residencial (T) Casa (T) San José do Rio Preto