Casa Bosque / Karlikova Architects


Descripción enviada por el equipo del proyecto. La casa de dos pisos tiene un área total de 341 m2 y se encuentra en vistas panorámicas del bosque y el agua. El objetivo es crear un edificio abierto y minimalista que se mezcle naturalmente con el paisaje. Las ventanas de piso a techo y tres terrazas cubiertas mejoran la conexión con la naturaleza.


La estructura se basa en una columna y un sistema de haz (Fachwerk): el marco de madera laminada visible crea un ritmo claro del cilindro y el haz, conectando visualmente el exterior y el interior. El tono de la madera refleja la corteza de los pinos circundantes, y todas las líneas siguen escamas y direcciones uniformes.

La casa fue prefabricada por Eslovenia (Eslovenia) y se reunió en el sitio en solo cinco días. La implementación completa fue llevada a cabo por la oficina de la compañía en Ucrania. El edificio comenzó en 2021 pero fue interrumpido debido al estallido de la guerra. El trabajo interno termina en 2023.

La casa se extiende a lo largo de la fachada para capturar la vista de cada instrumento. Una vez dentro, la vista conduce directamente a la cocina de doble altura, el espacio central de la casa, lleno de aire y luz. El área de planta abierta reúne la cocina, el comedor y la sala de estar. La isla de la cocina proporciona un área de existencia y se convierte en un elemento arquitectónico activo.


El aspecto de cocción está hecho de vidrio volador de la tierra con un marco de aluminio, que se combina con el fondo incorporado. La encimera es una placa de porcelana delgada de Raminan. La cocina es producida por la marca italiana Arredo3 y se implementa en asociación con su representante oficial Arredo3 Ucrania.

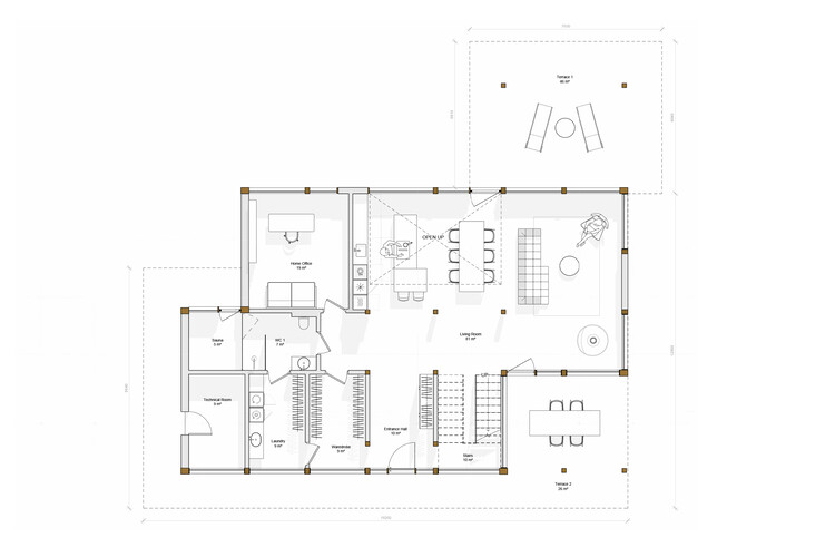
El interior minimalista consiste en tonos grises suaves, madera natural y acentos medievales. El área presenta un icónico torbellino de chimenea suspendido, que agrega enfoque vertical y enfoque escultórico. La planta baja incluye el área de entrada, área técnica con lavandería, sala de almacenamiento, sauna y baño de visitas, así como estudio privado.

Los pisos superiores tienen una suite principal con baño, vestidor y patio, así como dos habitaciones para niños y un baño compartido. La escalera con madera maciza y rieles de vidrio actúa como un conector vertical liviano entre los dos niveles. El interior permanece tranquilo y contiene una paleta. Cada elemento desde muebles hasta estructura sigue la misma lógica de transparencia, ritmo y tranquilidad.

(totenslate) Arquitectura