Casa HN08/TNT Arquitectura



Descripción de la presentación del equipo del proyecto. En una ciudad donde los espacios verdes están siendo reemplazados cada vez más por concreto y polvo, los clientes querían que sus hijos crecieran más cerca de la naturaleza e imaginaron un hogar modesto pero significativo. La Casa HN08 es un santuario tranquilo, abierto a la vegetación, la luz y el aire, y al mismo tiempo satisface las necesidades de una familia de tres generaciones.

Las cualidades espaciales tradicionales se reinventan a través de una composición de varios niveles de balcones, terrazas y vacíos que expanden e interconectan espacios. Estas capas de transición, desde el exterior hacia el interior, desde la planta baja hacia arriba, crean un flujo continuo donde la arquitectura y el paisaje se mezclan sin esfuerzo. En el centro de la casa, el núcleo vertical actúa como un “pulmón”, atrayendo la luz y el viento hacia el interior mientras conecta visual y espacialmente los distintos pisos.



La característica más llamativa de la Casa HN08 es su jardín frontal elevado, un volumen verde que se inclina suavemente hacia el patio de juegos de abajo, formando una sólida puerta de entrada que protege la casa del ruido circundante y el desorden visual. Este jardín no es sólo un umbral sino también el “corazón” de la casa, proporcionando un espacio tranquilo donde los miembros de la familia pueden descansar, relajarse y reconectarse con la naturaleza.



En el primer piso hay un parque infantil, junto a un jardín inclinado y una terraza de madera, que recuerda el espíritu de la vida tradicional vietnamita: un área abierta compartida para el juego de los niños y las actividades familiares. El segundo piso alberga la despensa y el área de recepción, que se conecta directamente con el jardín y el espacio central, proporcionando abundante luz natural y ventilación mientras mantiene la privacidad a través de paneles operables de doble acristalamiento.


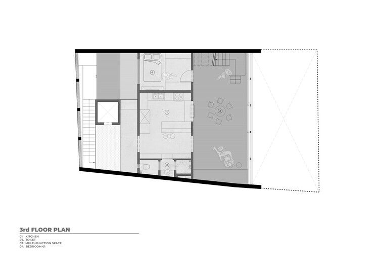
El tercer y cuarto piso concentran las principales áreas públicas de la casa, incluida la sala familiar, la cocina, los dormitorios y el baño compartido. Estos están dispuestos alrededor del atrio para promover las conexiones y la continuidad visual entre los pisos. La fachada presenta un sistema de doble acristalamiento con persianas automáticas que regulan la luz solar, el calor y el flujo de aire natural.


La suite principal está ubicada en el quinto piso y se beneficia de la fachada frontal y el vacío central, lo que la convierte en un refugio tranquilo y cómodo para los propietarios. La sexta planta está diseñada como una zona común abierta, que incluye una terraza exterior de madera y una gran piscina rodeada de vegetación para proporcionar mayor privacidad, complementada con una piscina infantil más pequeña.

El séptimo piso es un espacio de culto familiar con una posición destacada y tablas de madera móviles y puertas de vidrio, que equilibran solemnidad y armonía en la expresión arquitectónica general. El tejado de arriba alberga funciones técnicas y un pequeño huerto. Este nivel superior ofrece amplias vistas de la ciudad circundante y brinda a la familia un retiro tranquilo y lleno de naturaleza.

Al integrar vegetación, luz y ventilación en una estructura espacial en capas, la Casa HN08 expresa el equilibrio entre la vida urbana moderna y el espíritu cultural local, proporcionando un hogar tranquilo conectado con la naturaleza en el corazón de la ciudad.
