TCV Residencial/Andre Becker


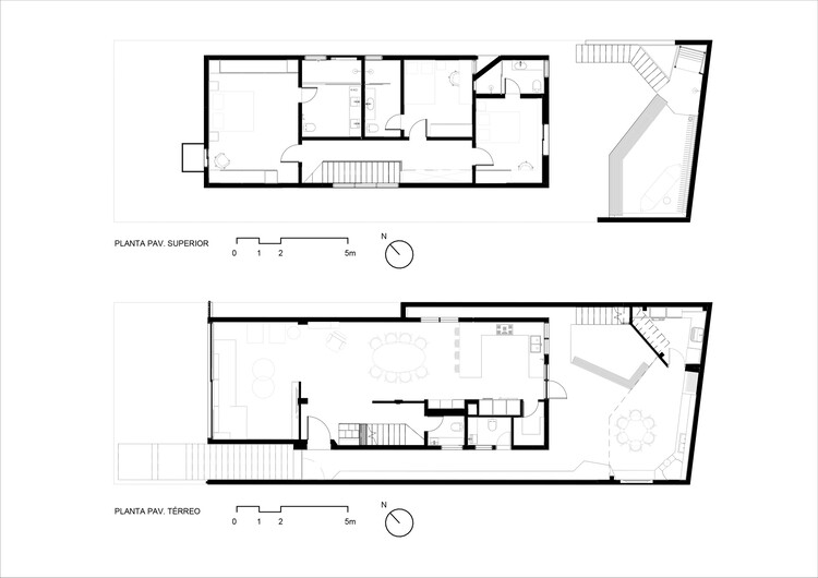
Descripción de la presentación del equipo del proyecto. Se están realizando renovaciones residenciales en el complejo residencial Jardim das Bandeiras en el barrio de Vila Maddalena de São Paulo. El terreno de la zona es montañoso, Un terreno bastante inclinadose accede desde abajo.



El garaje y oficina se ubican a nivel de calle, con escaleras laterales que conducen a la “planta baja”, donde las áreas sociales incluyen: sala, comedor, cocina integrada y terraza techada.

Hojas de terreno de 8 metros de ancho y 27 metros de profundidad. El espacio del jardín en el nivel social es pequeño por lo que la terraza cubierta en la parte trasera es un gran jardín suspendido.produciendo un clima confortable y un ambiente rico, especialmente en el centro de este vecindario donde las casas vecinas están cuesta arriba y generalmente tenemos grandes muros de contención.

Hay 3 suites familiares arriba, La suite principal cuenta con un balcón “integrado” en la pared exterior.aprovechando las vistas privilegiadas de Villa Maddalena.
