Ampliación de una casa inspirada en Mi vecino Totoro de Studio Ghibli

En Sídney, Australia, CplusC Arquitecto + Constructor Creé My Neighbor Totoro House, un proyecto de remodelación y ampliación que transformó la casa familiar en algo más expresivo. Inspírate en Studio Ghibli mi vecina chinchillaEl diseño refleja fuertes lazos familiares al tiempo que introduce el concepto japonés de “Shakkei”, donde el paisaje exterior se convierte en parte de la experiencia interior.
Lo que hace que esta casa destaque inmediatamente es el uso de formas circulares. Desde ventanas hasta muebles, las formas geométricas se repiten de manera intencionada sin resultar abrumadoras, dando a cada espacio una identidad única sin dejar de estar conectado.


Línea del techo que brilla después del anochecer.
La adición exterior introduce una amplia línea de techo que se curva suavemente sobre las franjas de las ventanas. Es un movimiento sutil durante el día, pero cambia por la noche. La luz del interior rebota hacia arriba y desde el techo hacia el espacio, creando un brillo suave que hace que la extensión se sienta cálida y abierta.

Terraza diseñada para el día a día
Aquí los espacios interiores y exteriores están estrechamente conectados. La extensión se abre a una terraza parcialmente cubierta que incluye una zona de barbacoa y un comedor al aire libre, lo que facilita el paso entre cocinar, cenar y relajarse. Este diseño fomenta el uso durante todo el día, ya sea en una mañana tranquila al aire libre o en una tarde ocupada con la familia.


detalles circulares que unen todo
En el centro del espacio exterior, una mesa de comedor redonda con sillas curvas hace eco de la ventana redonda al lado. Estas formas repetidas crean una conexión visual entre la arquitectura y el mobiliario.
Los patrones circulares no son sólo decorativos. Se convierte en una forma de guiar cómo los espacios se relacionan entre sí.

Un jardín que evoluciona con el tiempo
El jardín detrás del comedor presenta capas de plantas de diferentes alturas. La característica más destacada es la pared de enredaderas que crecen alrededor de las ventanas circulares.
A medida que las plantas maduran, las vistas cambian gradualmente, añadiendo otra capa a la interacción de la casa con su entorno. Por la noche, las luces detrás de la vegetación convierten esta pared en un punto focal brillante que también ilumina el patio.




Salón rodeado de ventanas redondas.
En el interior, el tema circular continúa en el gran ventanal redondo de la sala de estar. Actúa casi como una lente, centrando la atención en el patio trasero y al mismo tiempo aportando luz natural.
Grandes puertas corredizas de vidrio con marco de madera abren completamente el espacio a la terraza, eliminando la barrera entre el interior y el exterior.


Asientos junto a la ventana integrados en el diseño
La profundidad de la ventana redonda le permite funcionar como asiento junto a la ventana. Se convierte en un lugar para sentarse, leer o simplemente contemplar el jardín.
Las estanterías abiertas cercanas añaden funcionalidad sin distraer la funcionalidad, centrando la atención en la forma y la vista.


espacio de comedor definido por la forma
El comedor en la parte trasera de la sala de estar continúa el tema, con una mesa de troncos colocada sobre una alfombra redonda. La repetición de formas crea cohesión entre espacios.
Los escalones a ambos lados conectan esta área con la cocina y la parte original de la casa, permitiendo que la sensación de lo antiguo y lo nuevo se mezclen.


El dormitorio se integra con el exterior
El nuevo diseño del dormitorio presenta una gran ventana circular que captura vistas de la sala de estar al aire libre y el patio trasero. Aquí es donde entra en juego el concepto “Shakkei”, utilizando la vista como parte de la estancia. Partes de las ventanas se abren para permitir la ventilación cruzada natural, mientras que los propios marcos también sirven como asientos.


Baño luminoso y funcional
Dentro de la suite, azulejos blancos verticales se alinean en las paredes, creando un telón de fondo limpio y minimalista. Las persianas de la ducha dejan pasar la luz natural y mantienen la privacidad. Es un espacio más tranquilo que el resto de la casa, pero el enfoque en la luz y las proporciones sigue siendo constante.


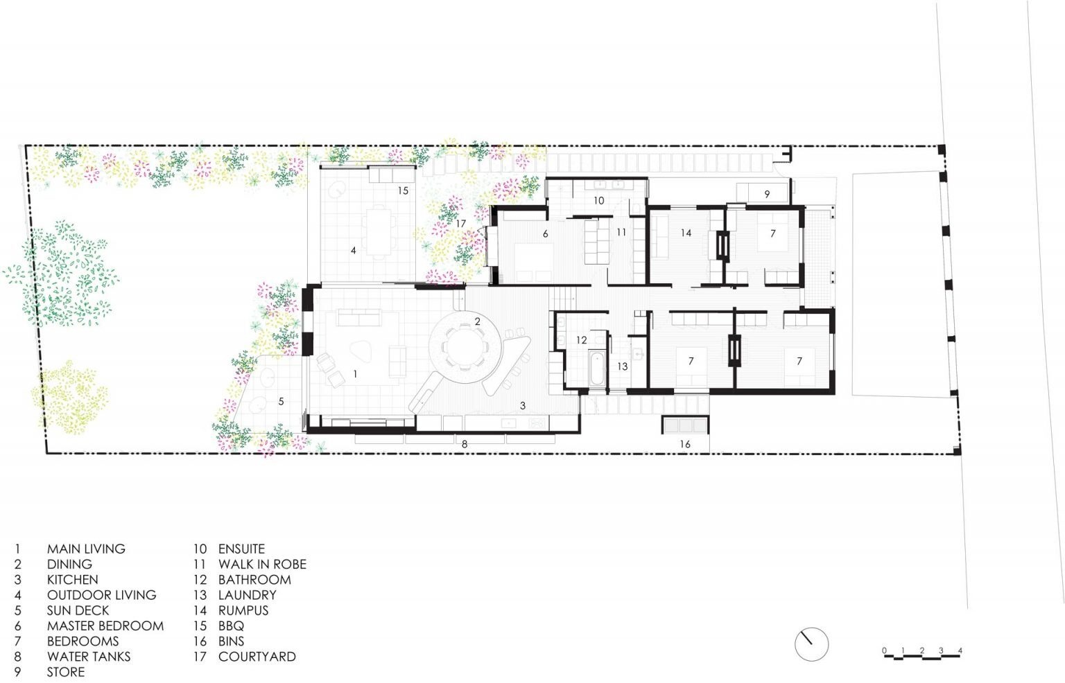
Un plan que combina lo antiguo y lo nuevo
El plano de planta revela cómo se conectan la casa original y la nueva ampliación. La disposición de los espacios fomenta el movimiento entre ellos, mientras que las nuevas áreas introducen un estilo de vida más abierto y flexible.

La Casa Mi Vecino Totoro equilibra con éxito creatividad y funcionalidad. Los elementos circulares aportan una sensación de juego, mientras que el diseño abierto y la fuerte conexión interior-exterior lo hacen muy práctico.
Combinando referencias del anime, conceptos de diseño japonés y la vida australiana contemporánea, CplusC Architects + Builders crearon una casa que es única y fácil de vivir.