Programa Henning Larsen Centralbadet Swimming and Sports Center en Suecia
Un nuevo espacio público de natación con acceso a Gotemburgo
Henning Larsen Seleccionado para diseñar un nuevo CentralBadet público nadar y Polideportivo En Gotemburgo, Suecia. Ganar madera Se espera que la propuesta, desarrollada en asociación con Winell & Jern Architects, profesor de Ramboll y Ciencias del Deporte, John Dohlsten, abra en 2031.
El próximo CentralBadet representa una inversión significativa en la infraestructura cultural de la ciudad y continúa el patrimonio público del espacio de natación de Gotemburgo de una manera sostenible y moderna.
El jurado elogió el trabajo ganador como ‘Instalaciones elegantes y vibrantes donde los ciudadanos pueden reunirse, ya sea nadando, jugando baloncesto o simplemente sentado en los escalones soleados junto al río. ‘

Henning Larsen gana el nuevo CentralBadet de Gotemburgo | Visualización © Grupo Plancton
CentralBadet: salud y vivienda comunitaria
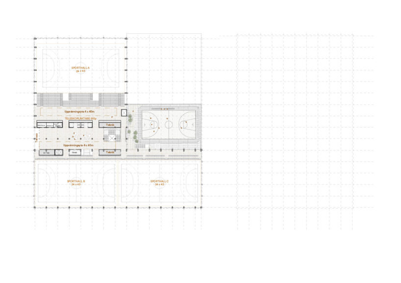
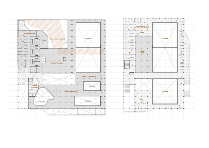
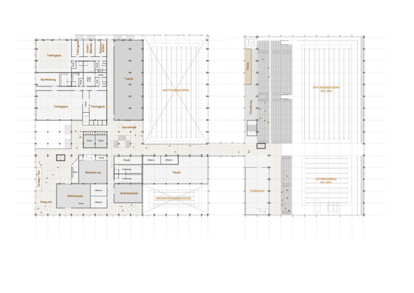
este equipo El complejo CentralBadet de 51,850 m2 está disponible para atletas de élite y visitantes diarios de Gotemburgo en el programa Henning Larsen. La piscina estándar olímpicas y las instalaciones de buceo estarán con la piscina familiar y el espacio de estudio.
El programa también incluye cuatro gimnasios, una cancha de baloncesto, un gimnasio, una piscina al aire libre, una sauna y un café. Para apoyar la vida cotidiana, el diseño incorpora un área de fiesta flexible, un estacionamiento de cochecito y un garaje de bicicleta dedicado (en verdadero estilo escandinavo).
‘La intención detrás de CentralBadet es priorizar los beneficios sociales y de salud tanto como el rendimiento deportivo‘ Martin Stenberg Ringnér, director de diseño de Henning Larsen. ‘Desde esquinas tranquilas hasta techos soleados, esperamos que cada visita pueda sentirse, conectarse y mezclar con el ritmo de la ciudad.. ‘

El proyecto estará abierto como un hito de salud pública y recreación en 2031
Ampliando parques forestales a los edificios
La propuesta CentralBadet de Henning de Larsen honra el histórico salón de natación de Gotemburgo Valhallabadet al seguir la tradición de la bañera pública y la salud comunitaria. Las referencias al patrimonio cultural urbano aparecen en el paisaje y los detalles artísticos, incluidos los inspirados en los murales cubistas por la artista sueca del siglo XX Nils Wedel.
Ubicado en Katrinelund, el nuevo CentralBadet se ha asociado durante mucho tiempo con la recreación y el respiro para fortalecer la conexión con el río Mölndal y el cercano Burgårdsparken, un parque forestal que alberga el famoso skatepark. Los visitantes podrán circular por todo el edificio y acceder a su techo, lo que cuenta con vías de carrera, gimnasios al aire libre, terraza y áreas de plantación, extendiendo la experiencia del parque al edificio.

CentralBadet incluirá piscinas estándar olímpicas y una piscina para el entretenimiento diario
Estrategia circular de Henning Larsen
La estrategia de construcción de CentralBadet equilibra la durabilidad con el desempeño ambiental. El concreto proporciona estabilidad estructural para las cuencas de la piscina, mientras que los paquetes de encías largos y otros elementos de madera reducen el carbono incorporado y funcionan bien en condiciones húmedas. La madera también se usa para particiones y techos internos, y los elementos están diseñados para desmontaje y reutilización futura.
La pared exterior combina ladrillos reciclados para conectar el proyecto a su fondo y celebrar Estructura circular. El extenso techo verde admite la biodiversidad, administra el agua de lluvia y aumenta la resiliencia de la construcción con el tiempo. Juntas, estas estrategias construyen CentralBadet como un recurso cívico duradero diseñado para crecer a medida que la ciudad crece.

La cuenca de la piscina de concreto es opuesta al tramo de madera Glulam para reducir el carbono específico
1/13
Información del proyecto:
Nombre: CentralBadet Centro de deportes de natación públicos
arquitecto: Henning Larsen | @HenningLarsEnchitects
Lugar: Gotemburgo, Suecia
Colaborador: Winell y Jern Architects,,,,, RambollJohn Dohlsten Universidad de Gotemburgo
Finalizar: Se espera que sea en 2031
fotografía: © Grupo de plancton | @plancton.group