Saltar enlaces

Villa flotante trae calma moderna al histórico río holandés

Una sorprendente villa flotante en Spaarne, con revestimientos de madera texturizada, finas molduras de aluminio y una brillante luz del suroeste dan forma al diseño.

Flotando tranquilamente en el río Spahn, cerca del centro histórico de Haarlem en los Países Bajos, el Haarlemschover no es exactamente el tipo de casa flotante que esperarías ver flotando entre calles medievales y torres de iglesias. Diseñador: asociados de van omelen Una villa flotante moderna que aporta una sensación relajante al río con líneas limpias, superficies texturizadas e interiores luminosos que son a la vez divertidos y tranquilos.

El diseño responde al movimiento de Spaarne y a su larga tradición de vida junto al río, al tiempo que proporciona al propietario Lex la altura y la apertura que alguna vez disfrutó en su gran casa en Haarlem. A continuación, analizamos más de cerca cómo esta villa acuática crea una sorprendente combinación de calidez, privacidad y ritmo arquitectónico.

Una sorprendente villa flotante en Spaarne, con revestimientos de madera texturizada, finas molduras de aluminio y una brillante luz del suroeste dan forma al diseño.

Detrás de la puerta exterior de bajo perfil hay una segunda puerta interior con ventanas incorporadas, lo que le da a la entrada una sensación de profundidad y al mismo tiempo mantiene la privacidad desde el interior hasta el río. La entrada incluye un rincón exclusivo para abrigos y zapatos, limpiamente integrado en la pared para mantener el espacio ordenado. Marca la pauta para el resto de la villa con sus formas simples, colores tranquilos y clara atención al detalle.

Con una entrada de dos niveles con una puerta interior oculta y espacio de almacenamiento incorporado, un estilo minimalista y tranquilo marca la pauta para la villa flotante.
Con una entrada de dos niveles con una puerta interior oculta y espacio de almacenamiento incorporado, un estilo minimalista y tranquilo marca la pauta para la villa flotante.

La entrada conduce directamente al área social. La cocina tiene un diseño minimalista con gabinetes blancos sin herrajes combinados con encimeras blancas a juego. Cada superficie se siente nítida. El diseño mantiene las vistas abiertas y permite que el río se convierta en parte de la vida diaria, ya sea cocinando o moviéndose por la habitación.

La cocina minimalista cuenta con gabinetes blancos y encimeras a juego, con vista directa al río y luz natural.
La cocina minimalista cuenta con gabinetes blancos y encimeras a juego, con vista directa al río y luz natural.
La cocina minimalista cuenta con gabinetes blancos y encimeras a juego, con vista directa al río y luz natural.

El espacio habitable principal cuenta con una pared de ventanas que permiten que la luz del día penetre profundamente en el interior. En el comedor, una mesa de madera sienta las bases del espacio, con dos candelabros esculturales suspendidos encima para darle un toque suave y gentil. El diseño abierto y los materiales cálidos lo convierten en un punto de encuentro natural y uno de los lugares más tranquilos de la villa.

El acogedor comedor cuenta con mesas de madera, colgantes esculturales y ventanas de pared a pared con vista al río.
El acogedor comedor cuenta con mesas de madera, colgantes esculturales y ventanas de pared a pared con vista al río.

El salón corre a lo largo de una pared de ventanas y cuenta con una chimenea de leña para los meses más fríos. En los días más cálidos, las puertas corredizas brindan acceso directo a una pequeña terraza junto al río. Es un momento sencillo al aire libre que le da al hogar un lugar para respirar y trae el sonido del agua al espacio habitable.

La acogedora sala de estar cuenta con una chimenea de leña y puertas correderas que conducen a una pequeña terraza junto al río.
La acogedora sala de estar cuenta con una chimenea de leña y puertas correderas que conducen a una pequeña terraza junto al río.

Esta planta también dispone de un dormitorio escondido tras una puerta corredera. El dormitorio y el baño están diseñados como un espacio continuo separado por una pared de vidrio parcialmente esmerilado, brindando privacidad sin bloquear la luz. La ducha y el inodoro se encuentran detrás de la sección esmerilada, mientras que la zona de dormitorio se beneficia de la luz natural ambiental.

El dormitorio y el baño de la planta principal están diseñados como un espacio separado por una pared de vidrio parcialmente esmerilado que permite el paso de la luz.
El dormitorio y el baño de la planta principal están diseñados como un espacio separado por una pared de vidrio parcialmente esmerilado que permite el paso de la luz.
El dormitorio y el baño de la planta principal están diseñados como un espacio separado por una pared de vidrio parcialmente esmerilado que permite el paso de la luz.

Una escalera junto a la pared de la ventana conduce al nivel inferior. Debido a la orientación suroeste, la luz del día también llega a este nivel. El nivel inferior está organizado como una sala de música de planta abierta rodeada por dos dormitorios, cada uno con su propio baño privado. También hay salas de almacenamiento y mecánicas, y un cuarto de lavado exclusivo cuidadosamente oculto a la vista.

El luminoso nivel inferior alberga una sala de música central, dos dormitorios con baño, trastero y lavandería.

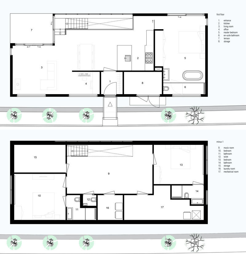
El plano revela la lógica detrás del diseño de la villa. La planta superior alberga todos los espacios sociales y un dormitorio con baño integrado, mientras que la planta inferior alberga habitaciones privadas dispuestas alrededor de un área central de música. Este plano de planta muestra cómo la fachada abierta y las paredes de las ventanas apoyan el flujo de luz en ambos pisos.

Los planos de planta claros revelan el diseño inteligente de dos niveles de la villa flotante, diseñado en torno a la luz y las vistas.

El Haarlem Shuffle demuestra que una casa flotante puede ofrecer la comodidad de una villa moderna manteniendo una fuerte conexión con el río flotante. Con detalles bien pensados, luz natural y un fuerte ritmo arquitectónico, es una de las residencias flotantes más exquisitas del río Spahn.


fotografía: Eva Jansens | Estudio de arquitectura: Van Ommeren Associates | Equipo: Joeri van Ommeren, Dion Nupoort | Contratista: De Blauwe Wimpel

Home
Account
Cart
Search
¡Hola! ¡Pregúntame lo que quieras!
Explore
Drag