Clínica Dental MD / Murillo Arquitectos


Descripción de la presentación del equipo del proyecto. La renovación integral de la Clínica Dental MD transformó un edificio profundo, de geometría irregular y poca luz natural, en un espacio médico luminoso, cercano a la ciudad y abierto al público. La intención original del proyecto era alejarse de la imagen clínica tradicional y establecer una experiencia espacial tranquila donde el edificio acompañe emocionalmente al usuario.

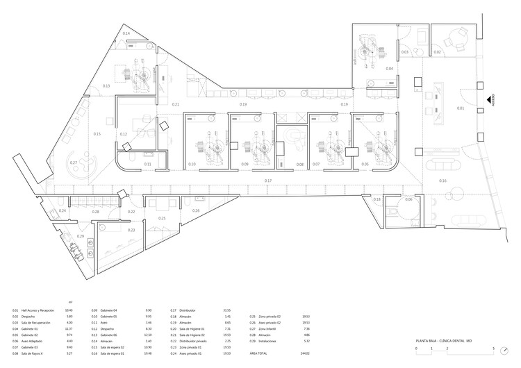
La organización del programa se basa en el control de altura y recorrido como estrategia principal. Se proponen dos recorridos diferenciados: un recorrido público para pacientes, visible y continuo, que define pasillos, salas de espera y despachos; un recorrido privado para el personal de la clínica, oculto a la percepción del usuario, que garantiza operaciones internas eficientes sin comprometer la experiencia del paciente.

Las particiones se elevan hasta la altura de la casa, creando una escala estrecha pero cómoda, mientras que el techo cobra protagonismo a través de grandes alturas libres para áreas públicas y oficinas. La transición entre las zonas más altas y más bajas se resuelve a través de techos abuhardillados que acompañan el recorrido, reforzando la continuidad del espacio y contribuyendo a la distribución uniforme de la luz. En las zonas privadas se reduce la altura, potenciando su funcionalidad y retención.


Las diferencias de altura entre tabiques y techos se resuelven con cerramientos de cristal transparente, permitiendo que la luz natural circule por todo el espacio y aportando continuidad visual. Esta decisión fue crucial para iluminar el sitio con condiciones de iluminación limitadas y mejorar la lectura unificada del proyecto.


La clínica dispone de dos salas de espera diferenciadas, una para adultos y otra para niños. Este último contiene una zona de juego que es tratada como un elemento arquitectónico: un volumen cilíndrico que alcanza la altura marcada por los tabiques y se integra de forma natural en el sistema espacial.

La iluminación se convierte en un recurso básico. En el pasillo principal, eje del recorrido del paciente, se introdujo un trompe l’oeil que simula un tragaluz natural, mejorando la percepción de la iluminación cenital y acompañando el movimiento dentro de la habitación.

La materialidad se basa en el uso de materiales naturales. La madera enchapada de haya al vapor proporciona calidez, mientras que un revestimiento de mortero de arcilla le permite utilizar texturas naturales y llamativas, como el acabado de estuco Ecoclay Arctic.

La fachada se abre hacia la Plaza General La Torre, facilitando la entrada de luz natural y estableciendo una relación directa entre interior y exterior. La sala de espera está conectada visualmente con el espacio verde circundante, reforzando la conexión urbana del proyecto.

La Clínica Dental MD propone una arquitectura sanitaria donde la luz, la escala, la materialidad y la organización funcional transforman los proyectos técnicos en experiencias espaciales amigables y humanas.
