Residencia No. 18/Estudio Pereda Han


Descripción de la presentación del equipo del proyecto. Casa 18 es una casa unifamiliar concebida a partir de la relación entre arquitectura, patio y atmósfera. El proyecto adopta la tipología del patio como elemento organizativo y la reinterpreta desde una lógica contemporánea que prioriza la vida interior, el control ambiental pasivo y la experiencia de espacios cerrados y privados.

La casa se organiza en planta en forma de U, estructurando las funciones en torno a un patio central. Este vacío actúa como principal conector espacial y ambiental, permitiendo el acceso regulado a la luz natural, favoreciendo la ventilación cruzada y estructurando una serie de espacios donde la iluminación, la oscuridad y la visión controlada acompañan el recorrido diario. La distribución del proyecto responde a una estrategia introspectiva, donde los espacios principales dan al patio interior y están protegidos del exterior directo, dando como resultado un ambiente doméstico más tranquilo y cerrado.


El acceso se realiza a través de un espacio exterior cerrado, a modo de pasillo, que actúa como transición entre la calle y el interior de la casa. La presencia de un árbol en este punto proporciona sombra, filtra la luz y marca un cambio gradual de escala y ritmo, potenciando la sensación de privacidad en la entrada.


Considerada el corazón del proyecto, la cocina está conectada directamente a su propia terraza, que sirve como desayunador y espacio para reuniones informales. Este patio no sólo permite ventilación e iluminación natural, sino que también articula visualmente los diferentes espacios de la vivienda, como el estudio, los dormitorios y las áreas de servicio, reforzando la relación entre ellos sin comprometer la intimidad de cada uso. El área social se ubica en la parte trasera del hotel y se abre al patio, estableciendo una relación directa entre interior y exterior, permitiendo expandir las actividades diarias y generando una continuidad espacial controlada.


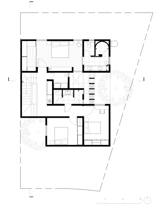
El dormitorio principal y dos dormitorios secundarios se encuentran arriba, todos con vista a diferentes patios. Esta disposición garantiza iluminación natural, ventilación y privacidad en cada espacio. El dormitorio principal también está equipado con zonas que potencian su carácter íntimo y su relación directa con el exterior.

Desde una perspectiva estructural y material, el proyecto busca el equilibrio entre durabilidad, sencillez y resistencia. La diferencia entre el sótano y las plantas superiores enfatiza el volumen. En la planta baja, el uso de hormigón pronunciado aporta solidez y una lectura atemporal, mientras que las plantas superiores presentan acabados ligeros que aligeran visualmente el volumen y mejoran las proporciones generales del conjunto. La vegetación se integra estratégicamente en los patios y acabados visuales, convirtiéndose en un elemento activo que acompaña la vida cotidiana y fortalece la relación entre interior, exterior y atmósfera.
