Bodega Vachnadziani / Laboratorio de Arquitectura #3



Descripción de la presentación del equipo del proyecto. El edificio está situado en el valle de Arazani, cuna de la tradicional y centenaria elaboración del vino de la región, con las montañas del Cáucaso y los viñedos como telón de fondo.


La elaboración del vino en Georgia tiene un significado ritual y sagrado. Por tanto, cuestiones relacionadas con el vino, como su producción, consumo o el lugar donde se produce este proceso, están rodeadas de una atmósfera emocional que no puede escapar de la tradición histórica, incluido el arte del enólogo. Este legado se manifiesta en forma de paráfrasis de elementos tectónicos medievales, pero no se respeta en todos los casos.

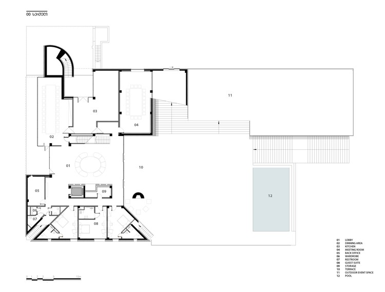
Desde una perspectiva funcional, se trata de una bodega que también alberga un pequeño hotel, una zona de recepción, un espacio para conferencias y un restaurante. El edificio está orientado al norte, hacia las montañas del Cáucaso, desde donde una gran escalera desciende a las zonas de viñedos y fábricas. La parte de producción está escondida dentro de la pendiente del terreno, dando la impresión no de una fábrica sino de una pequeña granja independiente a escala doméstica.

El edificio da al embalse situado frente al mismo. Visualmente, la estructura parece estar tallada en un solo material o en una gran roca; sin embargo, sus lados están estrictamente delimitados por temas arquitectónicos, separados por pronunciadas “pausas” volumétricas y sombras oscuras.

Su forma está definida por volúmenes escultóricos y volúmenes monolíticos atravesados por huecos arqueados, donde se fusionan tejidos arquitectónicos históricos y contemporáneos. El carácter arquitectónico se basa en el equilibrio de los opuestos: la estructura está firmemente anclada en la tierra mientras “suspendida” en el aire.

Esta dicotomía continúa en el tratamiento de la superficie: por un lado, las paredes táctiles talladas a mano enfatizan la conexión con la tierra, mientras que, por otro lado, las superficies frías y brillantes contrastan y “disuelven” el edificio en el entorno. El interior se organiza en torno a un espacio principal de doble altura. En cuanto al contenido, esta sala es la sala de un castillo medieval con chimenea, y en cuanto a la funcionalidad, es una acogedora antesala.


El segundo elemento central del espacio es la escalera, que intenta imitar un órgano. Sin embargo, la geometría formada por sus partículas representa una continuación de un tema similar en la fachada este del edificio. El interior es monocromático, aunque compuesto por múltiples elementos como una textura combinada de madera y yeso. Además, pequeñas inserciones de color determinan la paleta de colores pastel, dictada por la tradición de los frescos georgianos. En las habitaciones de hotel, la atmósfera boudoir creada por las cortinas es muy destacada.
