Por qué esta casa contemporánea deja que el color, no las paredes, defina el espacio

En la Selva Negra de Alemania, un empresario exitoso regresa a su ciudad natal para construir una casa para la siguiente etapa de su vida. Mientras su negocio sigue creciendo a toda velocidad, la arquitectura Thomas Fablinski Arquitectos. Una vez que se dejan atrás las operaciones del día a día, el diseño de interiores comienza con Ippolito Fleitz Group GmbH – Arquitecto de identidad. Lo que sigue es un proceso cuidadoso y considerado en el que el color, los materiales y la artesanía, más que las paredes, toman protagonismo.
La entrada se siente como entrar a una galería moderna, con una consola flotante de color aguamarina que agrega un divertido toque de color. Las particiones delgadas brindan privacidad sin bloquear las vistas, lo que permite ver el restaurante mientras se mantiene la calma y la compostura del momento de llegada.

Este espacio de comedor equilibra la elegancia suave con un poco de brillo. Una lámpara de araña de cristal ahumado se extiende sobre la mesa de piedra, mientras que las lujosas sillas de terciopelo color ciruela añaden una rica textura y comodidad.




La casa se abre a una amplia sala de estar de planta abierta donde los límites se suavizan en lugar de definirse.
Un techo negro abarca todo el espacio, marcando inmediatamente el tono. Permite que los colores y los materiales avancen, convirtiendo muebles y objetos escultóricos en personajes dentro de la habitación. Cada elemento es independiente pero sigue siendo parte de una composición cuidadosamente equilibrada.
Los materiales varían entre acabados brillantes, mate y suaves absorbentes. A medida que la luz del día atraviesa el espacio, las superficies reaccionan, cambiando sutilmente la sensación de la habitación a lo largo del día.



La cocina se inclina hacia la comodidad moderna y temperamental, con cálidos gabinetes de madera y un espectacular protector contra salpicaduras de mármol verde que parece una obra de arte. La isla de gran tamaño se roba el espectáculo y le brinda mucho espacio para la preparación, mientras que la iluminación suave debajo del gabinete agrega un brillo suave.

Los espacios habitables se extienden hacia el paisaje. En la zona de asientos que sobresale, un generoso acristalamiento atrae la vegetación circundante hacia el interior, borrando los límites entre el interior y el exterior.
Las líneas gráficas se extienden desde el salón hasta el área de la piscina cubierta y continúan hasta la fogata al aire libre, que está ubicada ligeramente alejada de la masa principal. Las líneas animadas crean un contraste deliberado con la estricta geometría de la fachada de cristal y la clara estructura de la piscina.







Los bloques de colores atrevidos aportan energía instantánea a esta habitación, con paredes rojas y verde oliva que envuelven todo el espacio. Una lujosa cama tapizada en rojo marca el tono de la habitación, la ropa de cama blanca nube suaviza la habitación, mientras que las obras de arte redondas en ámbar y los jarrones sencillos aportan personalidad sin desorden.


Este dormitorio y baño privado cuentan con paneles de pared aterciopelados de color azul océano que añaden un toque de dramatismo. Una cama tapizada de color óxido calienta la paleta, mientras que el cristal del suelo al techo se abre directamente al jardín. El cuarto de baño privado cercano cuenta con una bañera incorporada con paredes y suelos de terrazo.



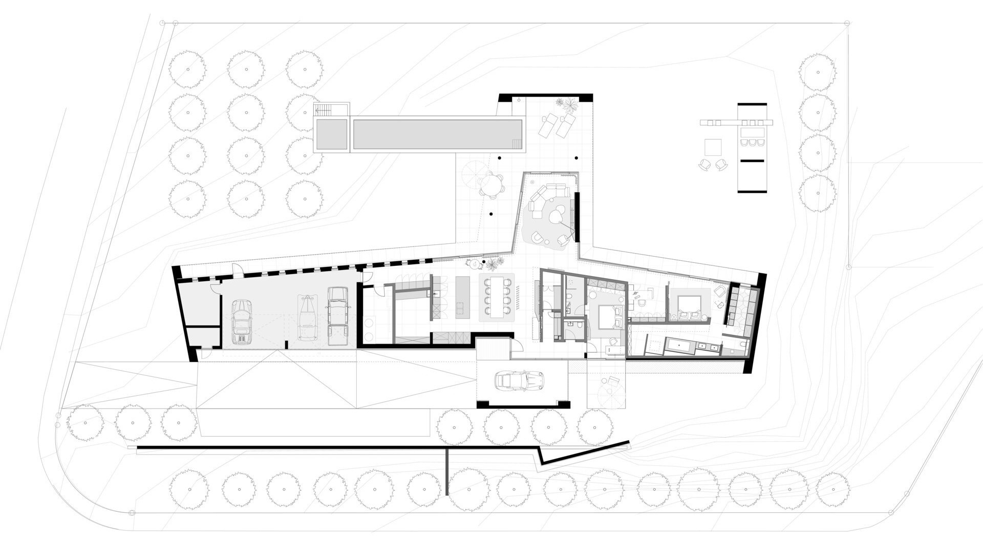
La residencia fue concebida como un moderno bungalow distribuido en una sola planta. La accesibilidad brinda comodidad a lo largo del tiempo, mientras que un plano de planta abierto integra varias áreas del hogar en una experiencia continua. Los cambios de atmósfera y materiales sustituyen a las paredes, orientando el uso y comprensión del espacio.

A través del tiempo, la colaboración y la exploración en el laboratorio de materiales de Ippolito Fleitz Group GmbH – Identity Architects, el cliente desarrolló un profundo aprecio por los colores llamativos y los materiales excepcionales.