Una casa de campo del siglo XVII con una moderna sala de lectura que da al jardín

Ubicada en las colinas de los Cotswolds, esta cabaña de piedra del siglo XVII tiene un estilo contemporáneo refinado. George King Arquitectos Se diseñó una pequeña ampliación de una habitación para transformar la casa respetando su carácter histórico y el paisaje circundante.

La sala de lectura contrasta con la mampostería original gracias a su revestimiento de madera carbonizada y sus marcos de puertas negros. Pero también complementa los marcos de ventanas negros existentes en la cabaña y los herrajes victorianos, creando un cuidadoso diálogo entre lo antiguo y lo nuevo.

Lo más destacado de la estancia es su puerta corredera de cristal, que desaparece por completo detrás de tres estanterías de madera. Las estanterías no sólo funcionan como almacenamiento sino también como estructura, soportando el techo en voladizo y permitiendo que una esquina del techo flote sin soporte. Cuando se abre, la habitación fluye perfectamente hacia el jardín, creando un espacio al aire libre que es a la vez espacioso e íntimo.




El interior de la sala de lectura es amplio y luminoso. La madera contrachapada de abedul de colores claros recubre las estanterías y las superficies interiores, proporcionando un suave contraste con el exterior más oscuro. Los tragaluces mejoran la iluminación natural y combinan perfectamente con las puertas de vidrio para que la habitación parezca abierta incluso en días nublados.

El espacio está equipado con componentes modulares que pueden configurarse como sillas, sofás o incluso trasladarse al exterior para disfrutar de las tardes soleadas. Esta flexibilidad permite que la habitación se adapte al clima, al estado de ánimo o al momento, incorporando un nuevo tipo de sala de jardín disponible durante todo el año.

El jardín en sí ha sido rediseñado para complementar la ampliación. Terrazas ajardinadas se extienden desde la casa, creando vistas al valle e invitando a un diálogo suave entre la cabaña, la nueva sala de lectura y el campo circundante.

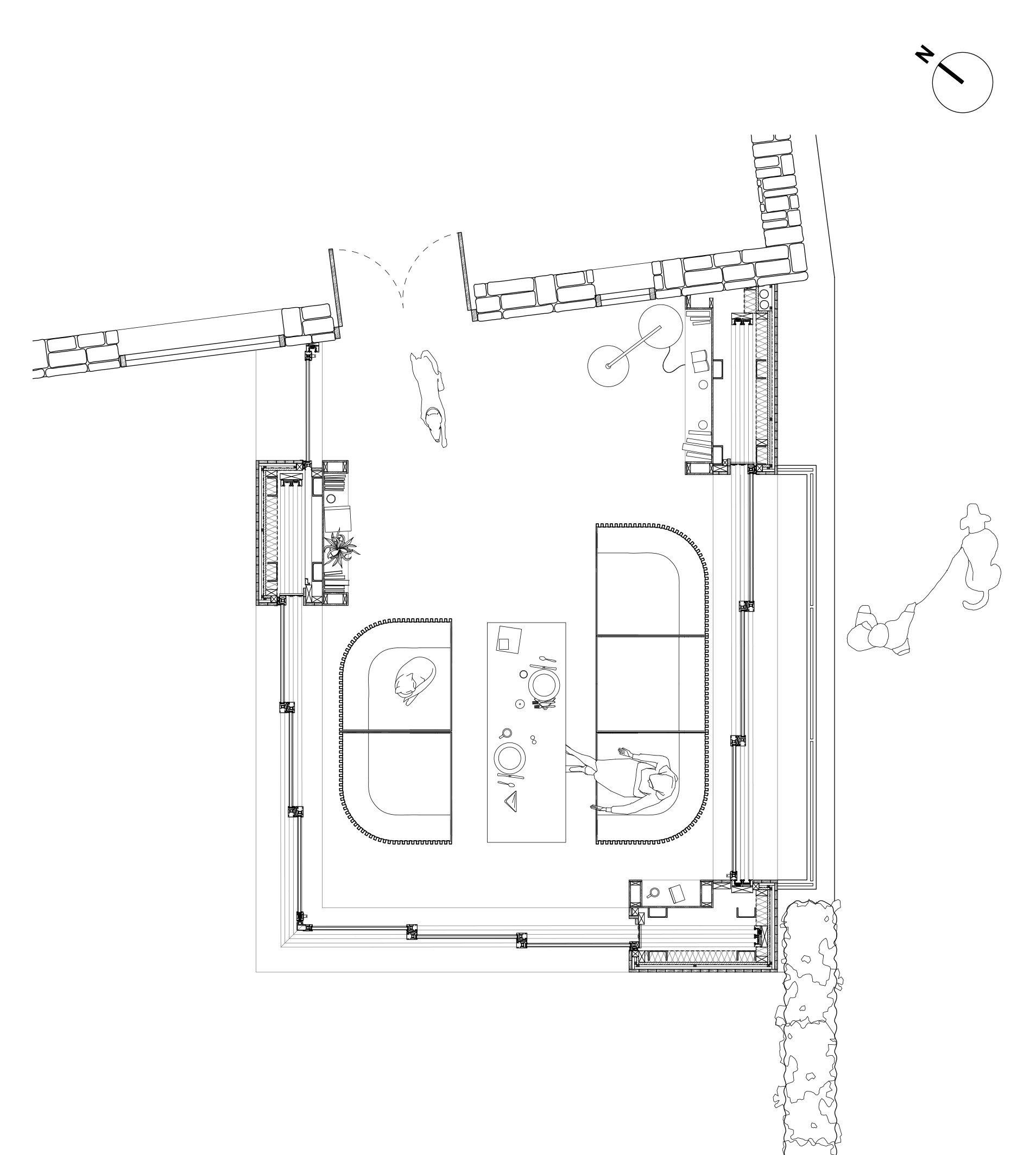
Los dibujos arquitectónicos revelan cómo se integró la sala de lectura en la cabaña del siglo XVII, mostrando paredes de vidrio que desaparecen, estanterías de madera y techos voladizos.


Combinando madera carbonizada, vidrio corredizo y muebles modulares hechos a medida, George King Architects creó una moderna sala de lectura que parece una extensión natural del jardín. Es un espacio pequeño, pero cambia la forma en que se experimenta la cabina, lo que demuestra que incluso las adiciones modestas pueden tener un gran impacto.