CASA NATI 41 / Anónimo


Descripción de la presentación del equipo del proyecto. Pridi House 41 está ubicada en un terreno de 800 metros cuadrados en la esquina de Pridiphanomyong Road, rodeado de áreas residenciales y bloques de apartamentos de poca altura de 20 m que dan a todo el sitio.

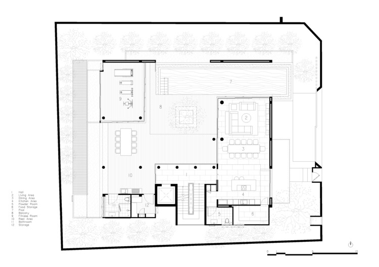
El área pública se ubica en el segundo piso, incluyendo sala, comedor, cocina, gimnasio y piscina, satisfaciendo las necesidades funcionales de los residentes. El propósito de este diseño es garantizar la eficiencia y las necesidades funcionales de las instalaciones traseras, como almacenamiento de zapatos, despensa, cocina tailandesa, habitaciones para cuatro amas de llaves, habitación para niños, espacio para todo el sistema de trabajo y estacionamiento para 6-8 autos. La zonificación se realiza como una circulación vertical definida por un núcleo de ascensores y escaleras. Para proteger el espacio habitable de posibles interferencias visuales del edificio de apartamentos de 20 metros de altura, en el lado sur se encuentran los sistemas de trabajo y los trasteros. Al mismo tiempo, la distribución permite que otros espacios funcionales disfruten de las vistas hacia el lado norte del edificio.

El diseño presenta un gran espacio al aire libre en el segundo piso, lo que permite a los miembros de la familia relajarse mientras disfrutan de la presencia de árboles en crecimiento visibles desde todas las habitaciones de la casa. La piscina se extiende casi a lo largo de un lado de la casa, flanqueando la sala de estar, el gimnasio y el comedor al aire libre, lo que permite vistas a la piscina desde casi todas las áreas y mejora significativamente el flujo de aire natural.


El volumen de doble altura de la sala de estar principal se extiende a los espacios para eventos del tercer y cuarto piso, que también cuentan con techos altos y generosos. La conexión entre estas dos áreas funcionales fue un intento deliberado por parte del equipo de diseño, que logró crear un espacio habitable más acogedor debido a la forma en que ciertas partes de la casa están conectadas visualmente.



La fluidez del espacio y la forma en que los ocupantes usan e interactúan con el espacio sin interrupción, crea una sensación de conexión donde el espacio y las personas no están completamente separados. El dormitorio principal está abierto a la luz del sol del este y ofrece vistas despejadas de los árboles y la piscina. En el lado oeste, se instalaron lamas de aluminio para bloquear el sol de la tarde y crear más privacidad. El mismo material se utiliza también en el dormitorio infantil del cuarto piso, dando al baño la privacidad necesaria y evitando el calor del este.


Aunque las principales salas de estar están en el segundo piso y no en la planta baja, Casa Pridi ha sido diseñada para brindar un confort térmico óptimo para los ocupantes y los espacios habitables. Las perspectivas cuidadosamente seleccionadas aportan una dinámica maravillosa a la experiencia vivida y al mismo tiempo brindan soluciones a los problemas de privacidad del sitio web. Dado que el muro protege la parte norte de la casa, los transeúntes no pueden ver a las personas que están dentro ni las actividades que se desarrollan. Ésta es la simplicidad que ofrece el diseño en el contexto de la vida urbana, creando confort térmico a través de orientaciones, ventilación, espacios verdes y espacios negativos cuidadosamente calculados, todos los cuales están integrados de manera estrecha y natural en toda la casa.
