Pabellón de Servicio Nora/Yemail Arquitectura


Descripción de la presentación del equipo del proyecto. Situado en una zona rural cachipeColombia, el proyecto se originó a partir de un antiguo almacén rural que ofrecía potencial de restauración. A través del pabellón se accede directamente a la cocina, baño y bodega, así como a diversos servicios culturales y comunitarios. El punto de partida, la estructura de bambú, nos permite actuar desde el borde: proporcionando un punto de encuentro narrativo, un espacio para la reflexión o, especialmente, un espacio para la restauración circular.

El diseño fue concebido con un doble objetivo: por un lado, partir de las posibilidades y situaciones existentes, y por otro, pensando desde las exigencias funcionales, proporcionando un diálogo con el entorno. Desde cualquier punto dentro del pabellón, puedes admirar el paisaje que tienes ante ti (campos, vegetación y fenómenos naturales) lo que fortalece la conexión entre la narrativa dentro del pabellón y su entorno natural.

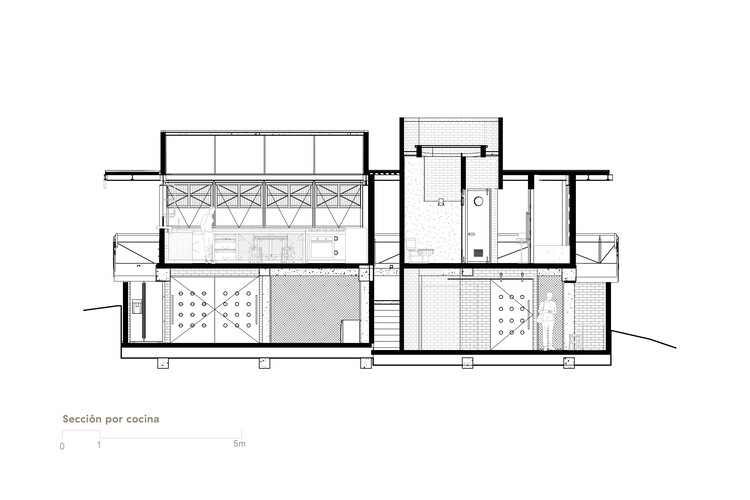
Funcionalmente, la reorganización de los espacios internos prioriza la proximidad y accesibilidad de los servicios para que los usuarios puedan moverse con fluidez entre las áreas de actividad y de apoyo. La distribución busca garantizar comodidad, maniobrabilidad y adaptabilidad para que el pabellón pueda afrontar eventos de distintos tamaños y tipos sin perder su carácter popular y representativo.


La ligereza del conjunto estructural metálico se combina con la tradición y calidez del azulejo vitrificado. Esta materialidad no sólo cumple con criterios estéticos y de durabilidad, sino que también ofrece una reinterpretación de lo contemporáneo a lo tradicional, permitiendo que la intervención entre en diálogo con el pasado diverso y el redescubrimiento cultural del lugar.

La propuesta tiene en cuenta las condiciones climáticas y de iluminación. cachipeutilizando ventilación cruzada y luz natural para reducir el consumo de energía y mantener un ambiente confortable. Grandes aberturas y aberturas estratégicas permiten el paso de la brisa al interior, mientras que el techo y la carcasa protegen contra la radiación directa y las frecuentes lluvias de la zona.


En definitiva, el pabellón renovado no sólo aborda las necesidades operativas de conferencias de todos los tamaños, sino que también se convierte en un hito cultural y visual en su entorno, proyectando una imagen de hospitalidad, modernidad y respeto por la memoria local.
