Casa Nakano / HOAA / Hiroyuki Oinuma Architect & Associates


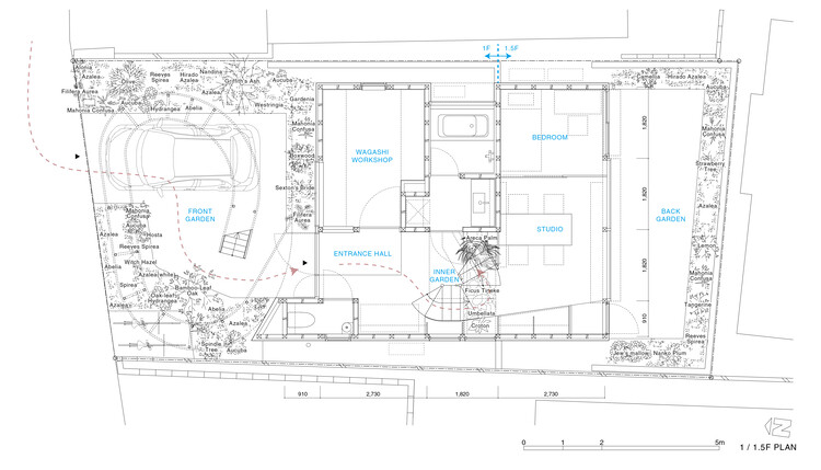
Descripción de la presentación del equipo del proyecto. El proyecto es una residencia y oficina de arquitecto ubicada en una zona residencial densamente poblada de Tokio. Dado que está rodeado de casas por tres lados, excepto en el lado norte donde está la carretera, se decidió instalar un gran ventanal en esta dirección, pero el desafío era cómo crear una vista luminosa del jardín a través de él.

Como resultado, un balcón curvo llamado “Jardín Kazari” se extiende desde los grandes ventanales del segundo piso para buscar la luz del sol. Las suaves curvas del jardín Kazari escapan de la sombra del edificio y añaden un toque de brillo a la vista desde las ventanas del restaurante orientadas al norte, creando un amortiguador entre la ciudad y la residencia.




El interior adopta un diseño de dos niveles, aprovechando al máximo la diferencia de altura del terreno. En todo el edificio se ofrecen vistas de los jardines Kazari y los jardines traseros, y se ha diseñado un sistema de circulación en espiral para alternar entre estos jardines. Además, consideramos que los jarrones, los libros, las fotografías, las plantas, etc. eran representativos de nuestras vidas hasta el momento, y al exhibir estos objetos con estantes que rodean el flujo, pensamos que podríamos crear la tensión adecuada en la casa, como un pequeño museo de arte, y alentar a las personas a vivir conscientemente en el futuro.




Al salir por la puerta del segundo piso hacia el Jardín Kazari, regar las plantas provocó conversaciones con los transeúntes. Los “Kazari” (adornos, decoraciones), incluidas las plantas, crean una conexión psicológica entre personas, casas y ciudades. El proyecto sirve como una entidad pública abierta a la metrópoli.

En lugar de aplicar una expresión decorativa a la arquitectura misma, como fue el caso del Art Nouveau y el posmodernismo, la obra demuestra nuevas formas y funciones de decoración arquitectónica, un estilo alguna vez conocido como criminal y a menudo criticado en el mundo moderno, que hizo la vida más significativa para las familias urbanas.
