Inicio Terrario/Estudio de superficie desconocida


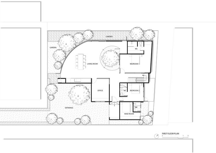
Descripción de la presentación del equipo del proyecto. Situado en el vibrante distrito de Ladprao Bangkokla Casa Terrario se encuentra tranquilamente en un terreno único en forma de pala. Un estrecho camino de acceso de tres metros conduce a un terreno cuadrado, rodeado por todos lados por vecinos, y el terreno parece inicialmente aislado. Sin embargo, el diseño convierte esta limitación en su mayor activo, cambiando la perspectiva y creando un santuario interior: un mundo privado completamente aislado del caos del mundo exterior.

La experiencia comienza con una “secuencia de llegada” cuidadosamente coreografiada. La entrada larga y estrecha se transformó en un túnel de transición. Flanqueado por muros de piedra natural y protegido por un techo de madera extendido, este pasaje amortigua el ruido urbano y genera anticipación, creando un momento de calma antes de revelar los espacios interiores.


El corazón de la casa es el patio central. El edificio conserva los árboles originales del lugar, envolviendo la naturaleza como una vitrina de cristal: un terrario viviente. Este núcleo verde actúa como una fuente de luz pasiva, filtrando la luz del sol a través de capas de follaje. A medida que el sol se mueve, proyecta sombras siempre cambiantes sobre el interior de madera, cambiando la atmósfera de la casa a medida que pasa el tiempo.


A pesar de estar rodeado de edificios circundantes, el interior parece infinito. Las áreas de estar de doble altura y las paredes de vidrio curvadas eliminan las esquinas y crean un flujo visual continuo entre la planta baja y los pisos superiores. El segundo piso está diseñado como un loft privado que alberga la colección de arte y el dormitorio principal, todo en constante diálogo con el jardín interior.


Como residencia de un maestro arquitecto, esta casa es una declaración de artesanía. Se seleccionaron cuidadosamente siete maderas diferentes y se blanquearon químicamente para lograr un tono único y armonioso, que recuerda al ciprés hinoki. Estructuralmente, el diseño es innovador y honesto; El sistema sin columnas se basa en estructuras de madera y acero Takian para soportar el peso del techo, mostrando la belleza natural de los materiales. En Casa Terrario no sólo conviven arquitectura y naturaleza; se abrazan, creando un oasis atemporal que hace que la ciudad se sienta alejada de todo.
