Casa en Sidera / Akio Isshiki Arquitectos


Descripción de la presentación del equipo del proyecto. El terreno, con forma de asta de bandera, está ubicado entre casas tradicionales japonesas y casas modernas construidas por promotores inmobiliarios. Al diseñar una casa adecuada para este lugar para una familia de cinco personas, la imagen que tenía en mente era la de una casa tradicional japonesa. la estructura de madera queda expuesta a través de la construcción nuevo muro (nuevo muro: El método de expresión tradicional japonés de pilares y vigas), dando una apariencia refinada sin nada superfluo. En una época en la que los costes de construcción siguen aumentando, creo que es racional reconsiderar la sabiduría de las casas tradicionales japonesas.


Para armonizar con su entorno, el edificio tiene una forma simple de dos pisos con techo a dos aguas y está adornado con cedro carbonizado. Al mantener baja la altura del piso, expusimos la estructura, con una sola capa de tablones de cedro actuando simultáneamente como techo del segundo piso y del primer piso. De esta forma se consigue una sensación de apertura reduciendo materiales y procesos constructivos.


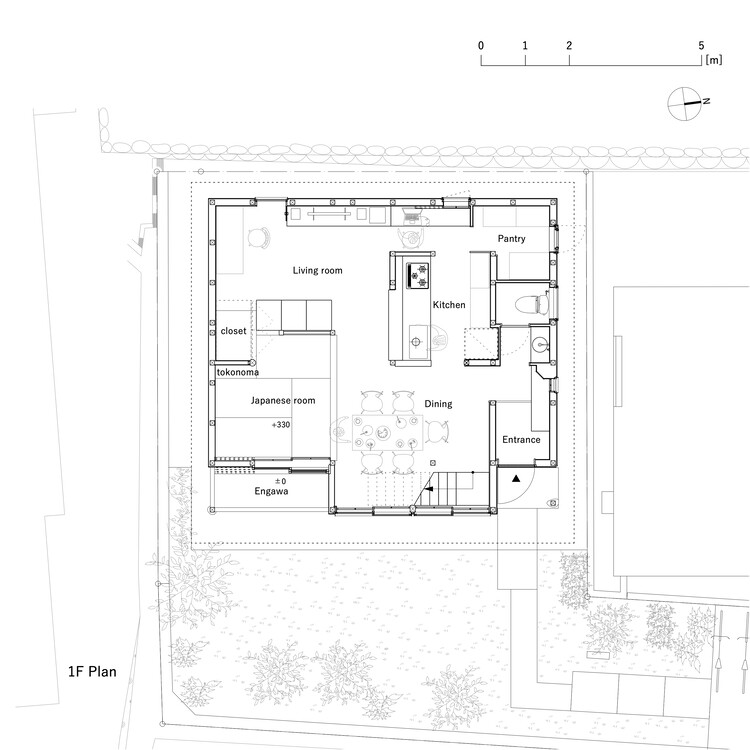
Para la pareja que disfruta cocinar, la cocina y el comedor están ubicados en el centro de la casa, con otras funciones domésticas dispuestas de manera compacta a su alrededor. Hacia el este, la pendiente del terreno introduce una gran abertura y una terraza en el borde, lo que permite que la conciencia se extienda naturalmente hacia afuera. La casa fue concebida como un lugar donde una familia de cinco personas pudiera vivir cómodamente sin sentirse restringida.


A través de una interpretación contemporánea de la sensibilidad de la vivienda japonesa, se ajustaron cuidadosamente los diversos requisitos planteados por la casa, como los requisitos del cliente, el rendimiento y el costo. La habitación de estilo japonés tiene un armario flotante y una pequeña entre las paredes (entre las paredes: un pequeño espacio que muestra flores y obras de arte de temporada) entrelazado con el sofá, difuminando los límites con el espacio habitable. La tabla de madera plegable que se utiliza para cerrar las ventanas del nivel del suelo se puede guardar encajando su tirador en el hueco practicado en la parte superior del mueble del televisor, haciendo que parezca parte de un mueble empotrado.

El dispositivo está inspirado en la arquitectura tradicional japonesa, donde la funcionalidad aparece sólo cuando es necesaria y, por lo demás, se integra en el espacio o el mobiliario, permitiendo movilidad y doble uso. Además, columnas y vigas actúan como marco para puertas correderas, eliminando parte del marco de la puerta. Esta operación mejora la independencia del esqueleto estructural y aporta claridad de expresión con respecto a la construcción. nuevo muro.

Hoy en día, pocas personas eligen casas de estilo japonés. tatamis y entre las paredes Desaparecen gradualmente y, a medida que la casa se vuelve más cerrada, también desaparece la oportunidad de experimentar el cambio de estaciones. Creo que los elementos de las casas japonesas, como la atmósfera tranquila de los tatamis limpios, la sutil tensión creada por las finas líneas de los bordes del tatami o el entramado shoji, la suave luz que se filtra a través del papel washi con el sutil movimiento de las sombras de las hojas y los acogedores bordes que desdibujan los límites entre el interior y el exterior, tienen una belleza que se puede compartir entre culturas.



Espero que estos elementos no desaparezcan sino que continúen en el futuro. Por lo tanto, mi objetivo no era crear algo decorativo o nostálgico, sino crear una casa que fuera austera, simple, pero funcional y hermosa: una casa japonesa neutral para la gente común, una casa que pudiera establecer nuevos estándares para la vida contemporánea.
